Рейтинг: 77
не верифицирован
Всего отзывов: 0
  • Работ в портфолио: 27
  • Типовых услуг: 0
  • Работ на продажу: 0
Был на сайте:

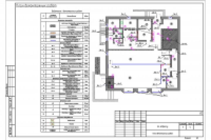
План демонтажных работ

Используемые навыки:

Описание

План демонтажных работ входит в состав проектной и рабочей документации - необходим для согласования демонтируемых элементов помещения, определения объемов работ

Презентация проекта

pic1863154.jpg

Оценили проект:

0