Разработка чертежей КМ КМД

Максим Блудов burny

Рейтинг: 169
не верифицирован
Всего отзывов: 2 0
Выполнил заданий: 1
  • Активность:
  • Работ в портфолио: 54
  • Типовых услуг: 0
  • Работ на продажу: 0
  • Возраст: 33 года
  • Зарегистрирован: 01.10.2014
Был на сайте:

Проект офиса

Используемые навыки:

Описание

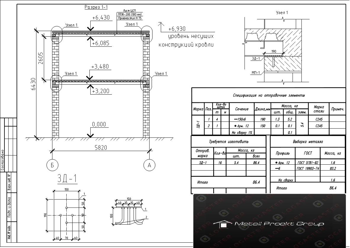
Выполнены расчет, чертежи КМ и КЖ

Ссылки на примеры реализации

 mkjbk.jimdo.com

Презентация проекта

pic2260622.jpg
1.JPG

Оценили проект:

0