Рейтинг: 49
не верифицирован
Всего отзывов: 0
Опубликовано заданий: 3
  • Работ в портфолио: 9
  • Типовых услуг: 0
  • Работ на продажу: 0
Был на сайте:

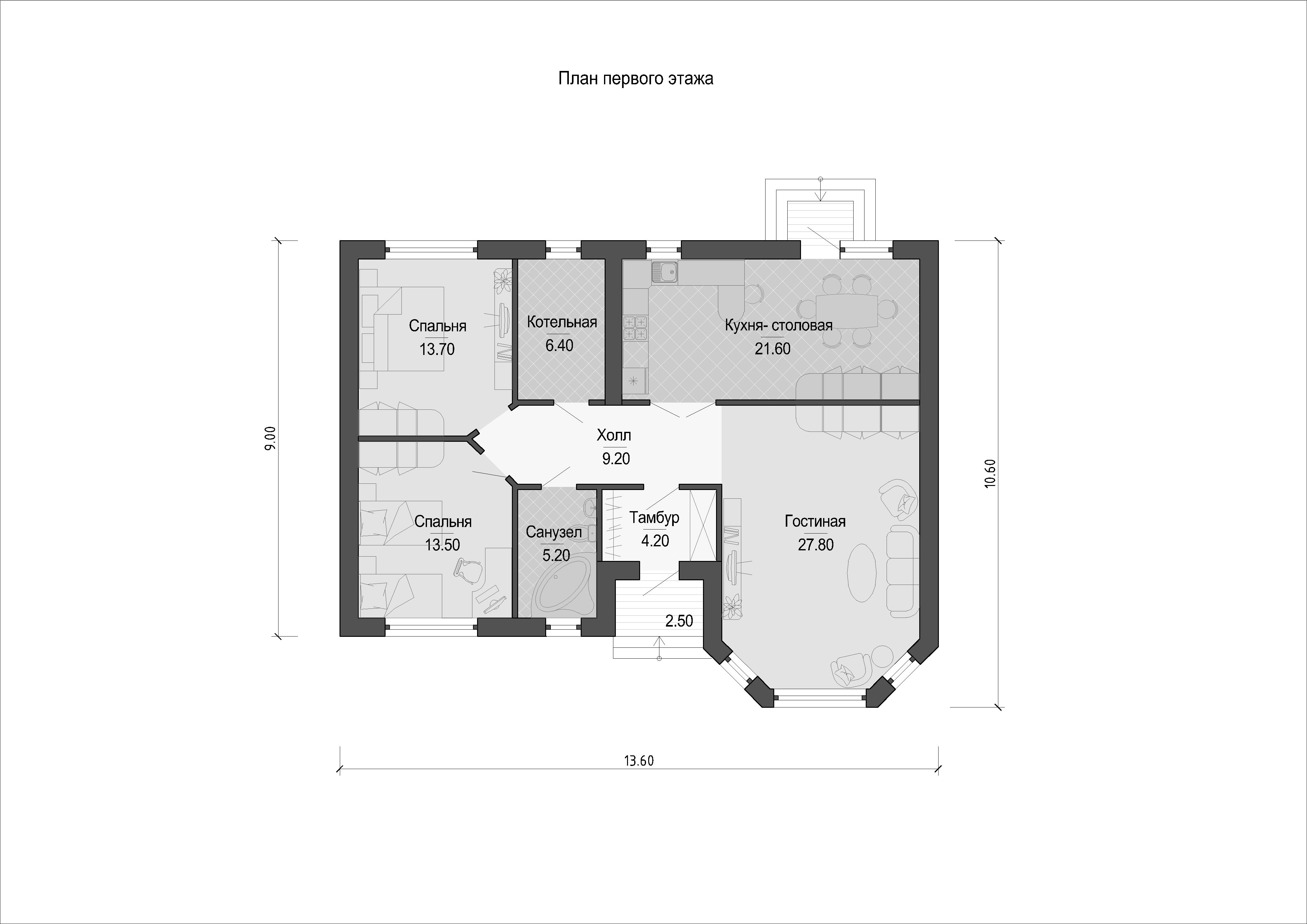
Проект частного дома

Используемые навыки:

Описание

Проект одноэтажного дома.
Габариты дома: 9 х 13,6 метров
Площадь застройки: 126 метров кв.
Общая площадь дома: 104 метров кв.
Жилых комнат : 3

Презентация проекта

pic3231646.jpg
1. эт дом. 10.6на13.6 с эркером.jpg
1. эт дом. 10.6на13.6 с эркером Вид 3.jpg
1. эт дом. 10.6на13.6 с эркером Вид 2.jpg

Оценили проект:

0