Рейтинг: 49
не верифицирован
Всего отзывов: 0
Опубликовано заданий: 3
  • Работ в портфолио: 9
  • Типовых услуг: 0
  • Работ на продажу: 0
Был на сайте:

Проект частного дома

Используемые навыки:

Описание

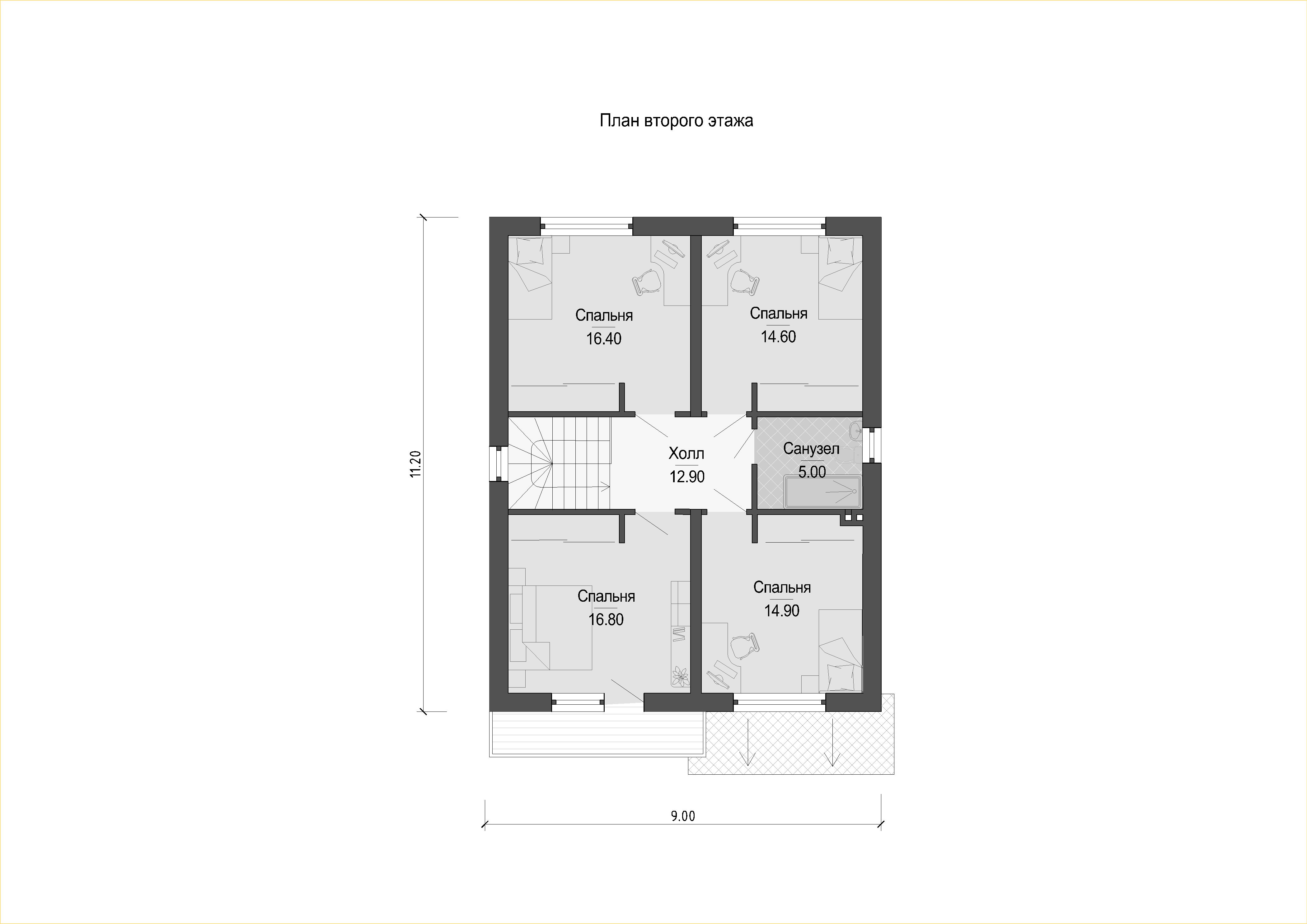
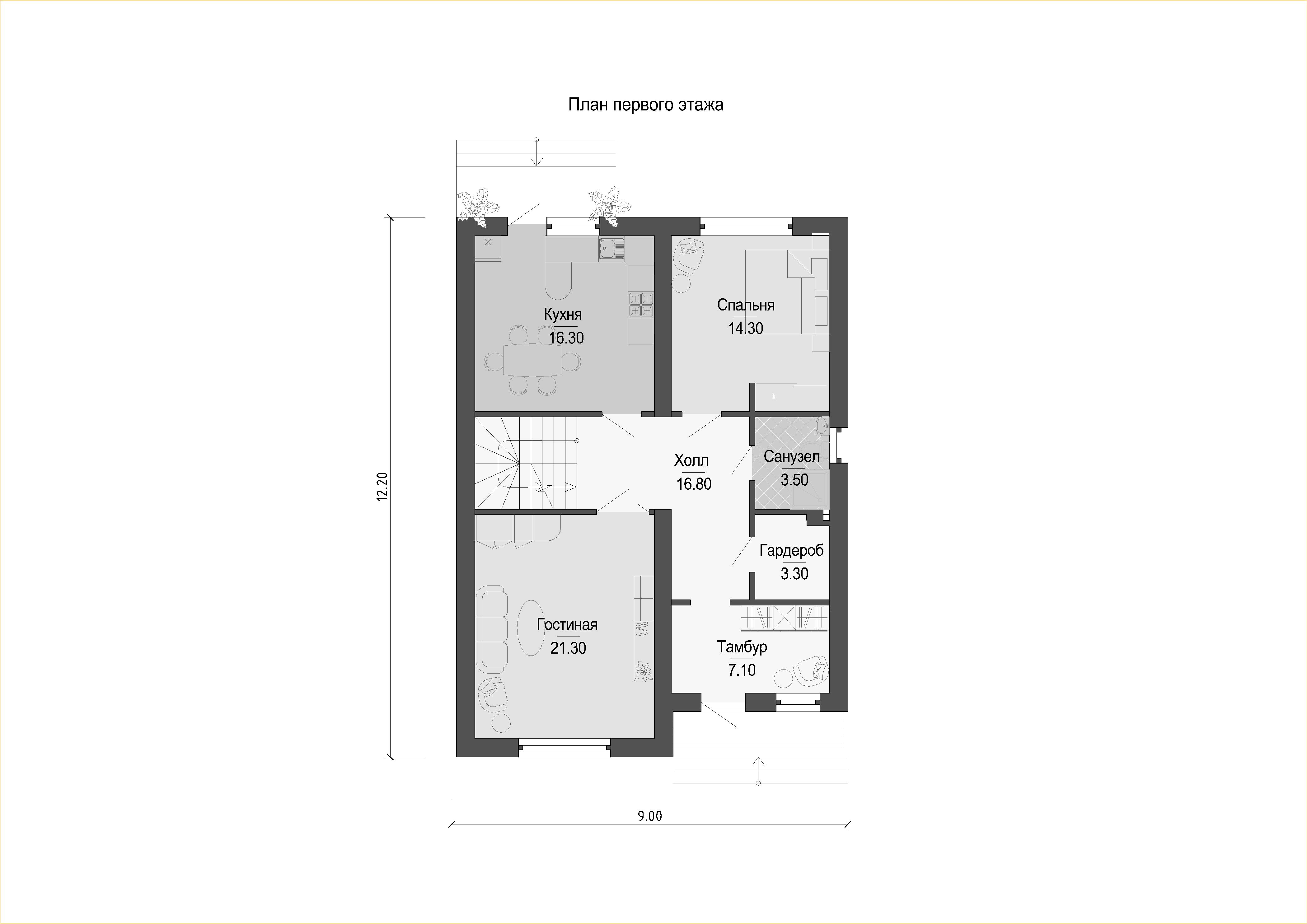
Проект двухэтажного дома.
Габариты дома: 8,9 х 12,2 метров
Площадь застройки: 217 метров кв.
Общая площадь дома: 161 метров кв.
Жилых комнат: 6

Презентация проекта

pic3231642.jpg
17. 2эт8.9х12.2мвид 1.jpg
17. 2эт8.9х12.2м план 1 этажа 1.jpg
17. 2эт8.9х12.2м план 2 этажа 1.jpg

Оценили проект:

0