Рейтинг: 49
не верифицирован
Всего отзывов: 0
Опубликовано заданий: 3
  • Работ в портфолио: 9
  • Типовых услуг: 0
  • Работ на продажу: 0
Был на сайте:

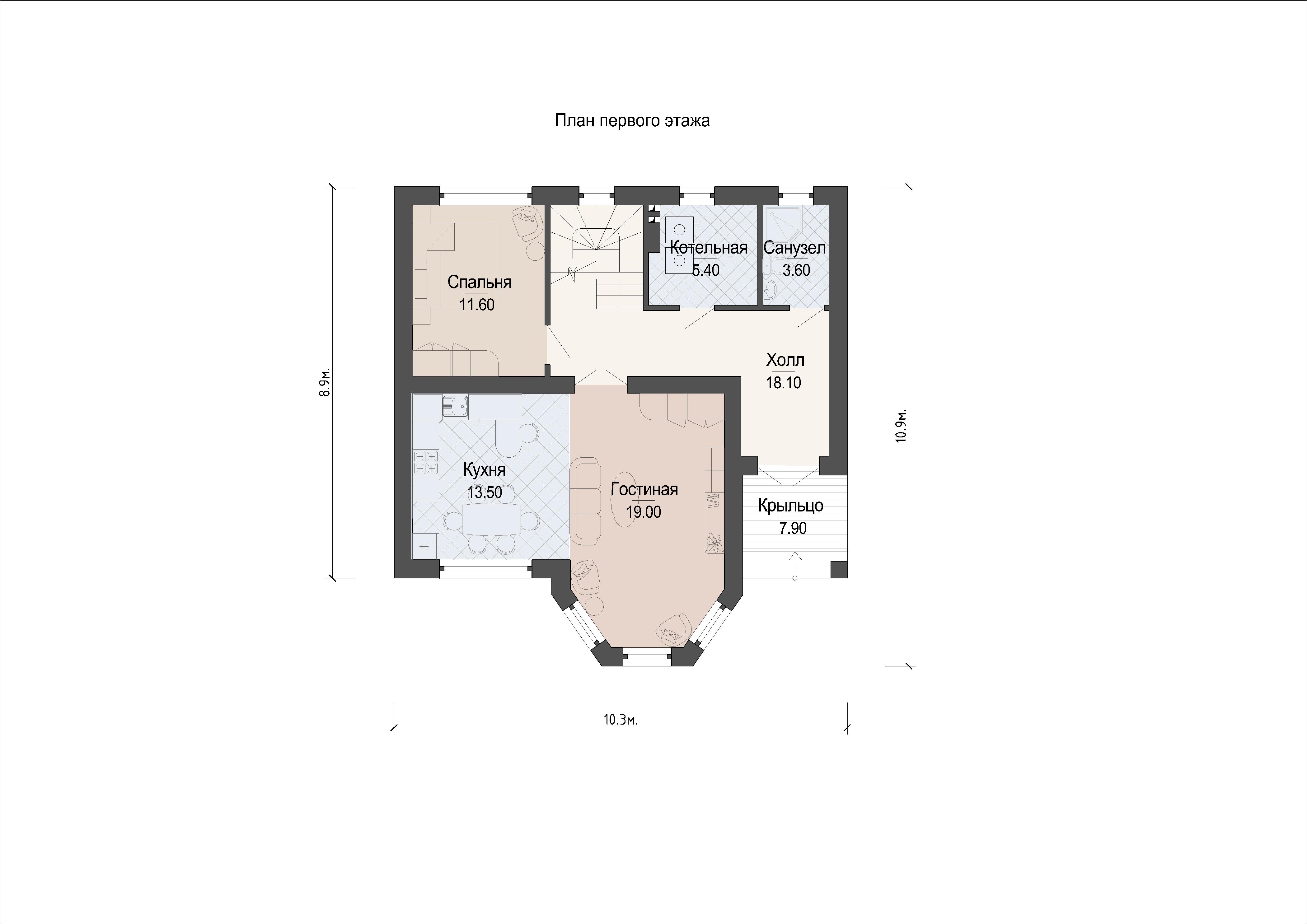
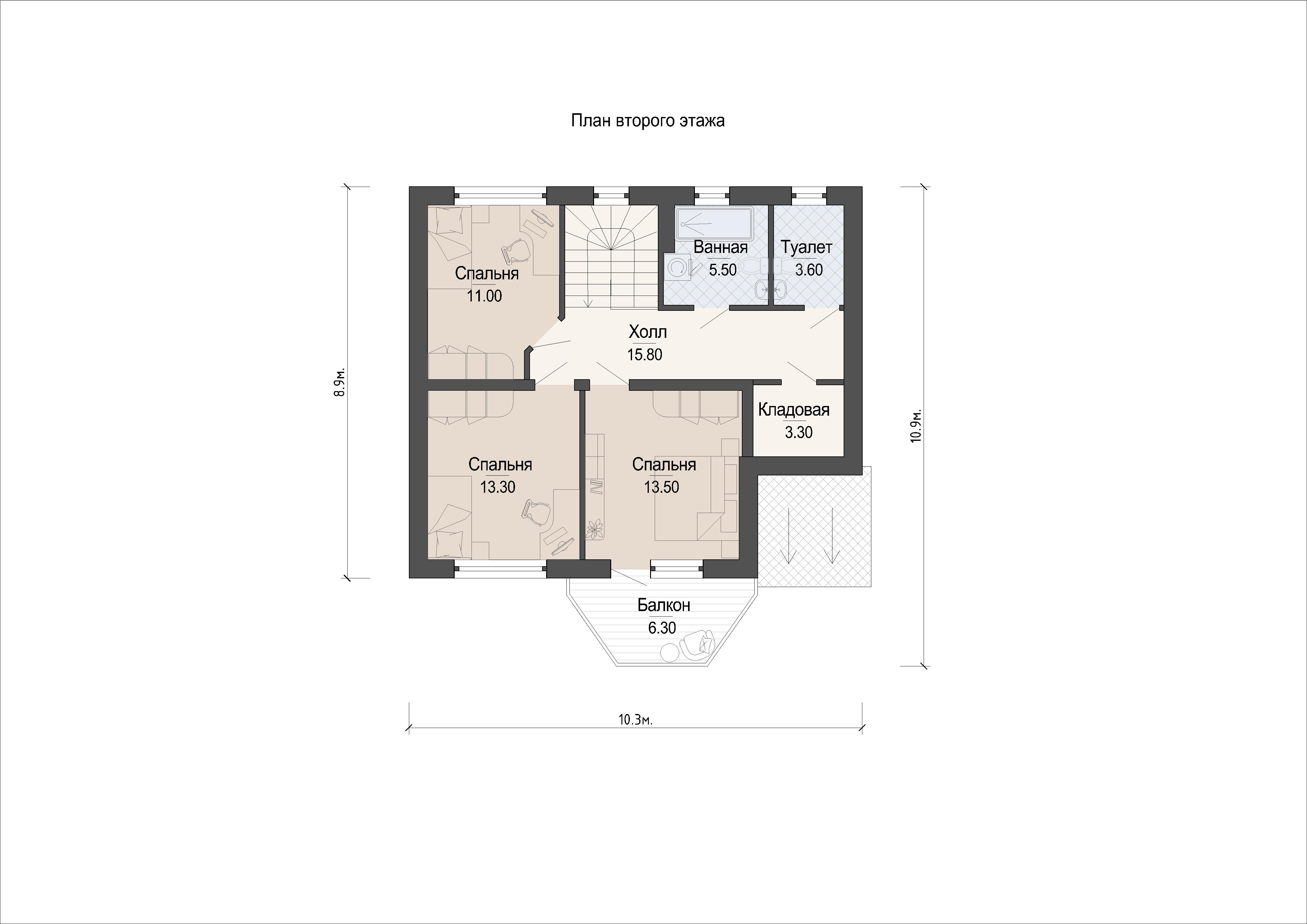
Проект частного дома

Используемые навыки:

Описание

Проект двух этажного дома с эркером.
Габариты дома: 8,9 х 10,3 метров
Площадь застройки: 203 метров кв.
Общая площадь дома: 151 метров кв.

Презентация проекта

pic3231683.jpg
10. 11.8на12.5 вид 2.jpg
10. 11.8на12.5 ПЛАН 1 ЭТАЖА.jpg
10. 11.8на12.5 ПЛАН 2 ЭТАЖА.jpg

Оценили проект:

0