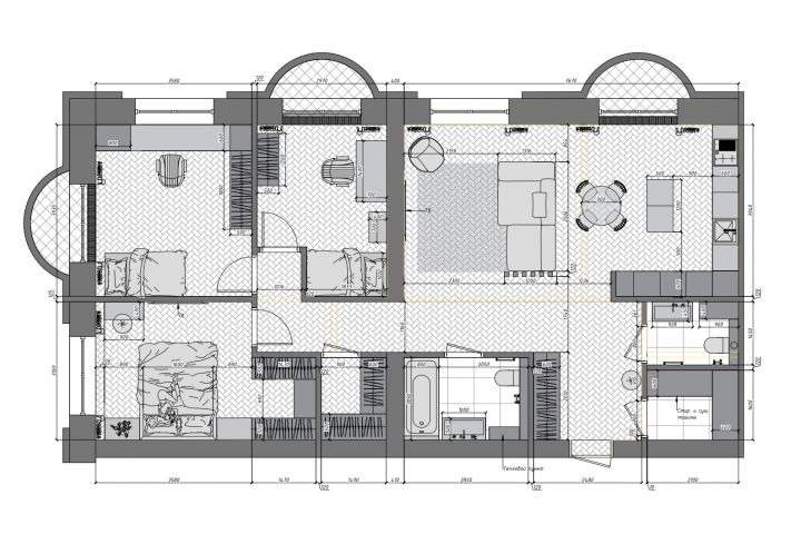
Планировочное решение квартиры
Для полной функциональности этого сайта необходимо включить JavaScript.
Москва
Каждый проект – это часть моего творческого пути
Lidiya I'm
de-Deniska
Рейтинг: 375
не верифицирован
Всего отзывов:
4
0
Выполнила заданий:
8
Опубликовала заданий:
11
Нейросаммари
Активность:
Работ в портфолио:
270
Типовых услуг:
0
Работ на продажу:
1
Возраст:
34 года
Зарегистрирован:
09.07.2009
Была на сайте:
2025-10-09 в 12:11
Написать Lidiya I'm
Предложить работу
Добавить в избранное
Добавить рекомендацию
Пожаловаться
Дизайн пространства
65
0
Планировочное решение квартиры
Используемые навыки:
Дизайн интерьеров
Описание
Решение
Результат
Соавторы
Презентация проекта
Примеры реализации
Описание
Квартира для семьи из 4х человек
Презентация проекта
Оценили проект:
0
×
Оценили проект
×
Авторизация
Для того чтобы оценивать проекты, вам нужно войти на сайт
Другие проекты
Все проекты
Детская 1015Б Алиса
План электрики
Кухня-гостиная
FREELANCE.RU
Toggle navigation
Нанять фрилансера
Заказчику
Каталог фрилансеров
Каталог PRO
Каталог студий
Каталог услуг
Каталог работ
Виртуальный HR
Умный поиск
Провести конкурс
Разместить задание
Найти работу
Найти задание
Присоединиться к команде
Участвовать в конкурсе
Предложить услугу
Вход
Разместить задание
▲