Честный архитектор.

Михаил Гуревич MAG-TJ

Рейтинг: 95
не верифицирован
Всего отзывов: 0
  • Работ в портфолио: 25
  • Типовых услуг: 0
  • Работ на продажу: 0
Был на сайте:

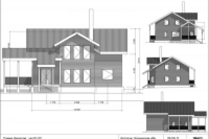
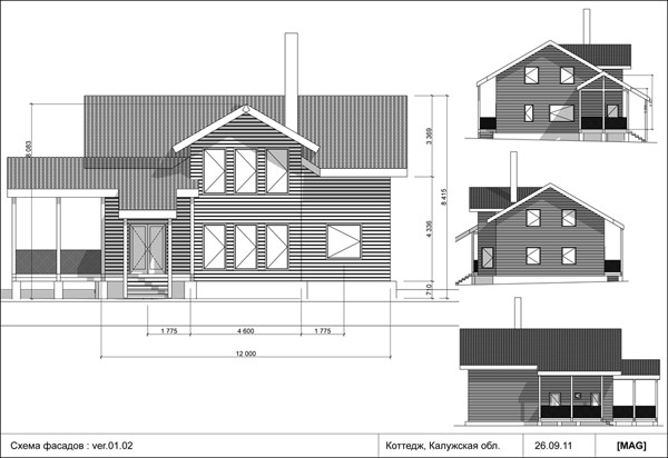
Коттедж 245кв.м

Описание

Разработка проекта коттеджа 245 кв.м из бруса для сезонного проживания большой семьи. Калужская область.

Ссылки на примеры реализации

 mgurevich.ru/kaluga245/

Презентация проекта

pic1648575.jpg

Оценили проект:

0