Честный архитектор.

Михаил Гуревич MAG-TJ

Рейтинг: 95
не верифицирован
Всего отзывов: 0
  • Работ в портфолио: 25
  • Типовых услуг: 0
  • Работ на продажу: 0
Был на сайте:

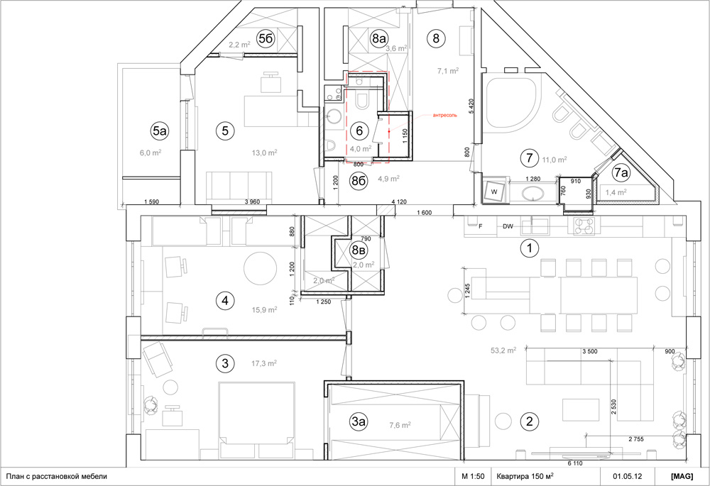
Планировка квартиры 150кв.м

Используемые навыки:

Описание

Планировка квартиры для комфортного проживания семьи из 4-х человек в новом жилом комплексе. Хозяйский сан.узел оборудован двухместной ванной Jacuzzi и сауной.

Ссылки на примеры реализации

 mgurevich.ru/kv150/

Презентация проекта

pic1648587.jpg

Оценили проект:

0