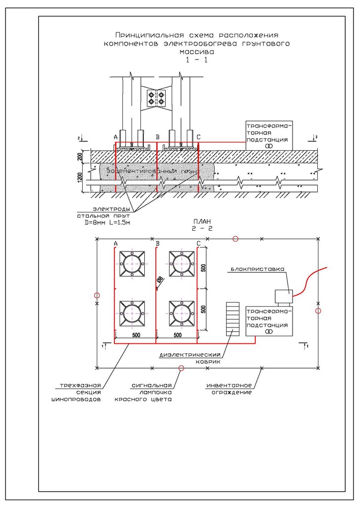
Усиление грунтового массива путем нагнетания химических составов
Для полной функциональности этого сайта необходимо включить JavaScript.
Санкт-Петербург
На сайте с: 05.07.2015
Быстро. Качественно. Недорого.
Максим К
maxi-k
Рейтинг: 165
не верифицирован
Всего отзывов:
0
Активность:
Работ в портфолио:
75
Типовых услуг:
0
Работ на продажу:
0
Был на сайте:
2020-04-23 в 15:18
inbox
vk.com/chertezhiki
Вконтакте
Предложить работу
Добавить в избранное
Добавить рекомендацию
Пожаловаться
Инженерия
20
0
Усиление грунтового массива путем нагнетания химических составов
Используемые навыки:
Чертежи/Схемы
Описание
Решение
Результат
Соавторы
Презентация проекта
Примеры реализации
Описание
Презентация проекта
Оценили проект:
0
×
Оценили проект
×
Авторизация
Для того чтобы оценивать проекты, вам нужно войти на сайт
Другие проекты
Все проекты
Наружная трассировка воздуховода
Сборочный чертеж
Демонтаж железобетонных конструкций
FREELANCE.RU
Toggle navigation
Нанять фрилансера
Заказчику
Найти по специализации
Найти по услугам
Провести конкурс
Разместить задание
Виртуальный HR
Другое
Найти работу
Фрилансеру
Найти задание
Присоединиться к команде
Участвовать в конкурсе
Другое
Возможности
Для заказчика
Для фрилансера
Вход
Разместить задание
▲