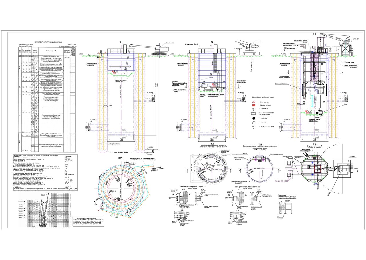
Проходка ствола (шахты)
Для полной функциональности этого сайта необходимо включить JavaScript.
Санкт-Петербург
На сайте с: 05.07.2015
Быстро. Качественно. Недорого.
Максим К
maxi-k
Рейтинг: 165
не верифицирован
Всего отзывов:
0
Активность:
Работ в портфолио:
75
Типовых услуг:
0
Работ на продажу:
0
Был на сайте:
2020-04-23 в 15:18
inbox
vk.com/chertezhiki
Вконтакте
Предложить работу
Добавить в избранное
Добавить рекомендацию
Пожаловаться
Инженерия
36
0
Проходка ствола (шахты)
Используемые навыки:
Промышленное и гражданское строительство
Описание
Решение
Результат
Соавторы
Презентация проекта
Примеры реализации
Описание
Презентация проекта
Оценили проект:
0
×
Оценили проект
×
Авторизация
Для того чтобы оценивать проекты, вам нужно войти на сайт
Другие проекты
Все проекты
Наружная трассировка воздуховода
Стена в грунте
Очистка и ремонт коллектора
FREELANCE.RU
Toggle navigation
Нанять фрилансера
Заказчику
Найти по специализации
Найти по услугам
Провести конкурс
Разместить задание
Виртуальный HR
Другое
Найти работу
Фрилансеру
Найти задание
Присоединиться к команде
Участвовать в конкурсе
Предложить услугу
Другое
Возможности
Для заказчика
Для фрилансера
Вход
Разместить задание
▲