Быстро. Качественно. Недорого.

Максим К maxi-k

Рейтинг: 165
не верифицирован
Всего отзывов: 0
  • Активность:
  • Работ в портфолио: 75
  • Типовых услуг: 0
  • Работ на продажу: 0
  • Возраст: 10 лет
  • Зарегистрирован: 05.07.2015
Был на сайте:

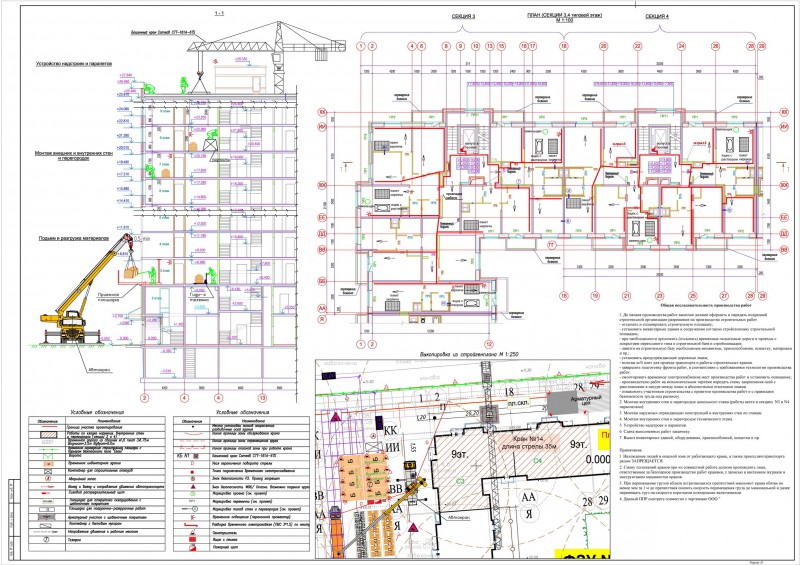
ППР кладка наружных, внутренних стен и перегородок жилого дома

Описание

ППР на кладку наружных, внутренних стен и перегородок жилого дома. ПЗ более 100стр. + технологические карты.

Презентация проекта

pic3085794.jpg
ППР (2)-ППР_новый размер_новый размер.jpg

Оценили проект:

0