Остановись, подумай, сделай, наблюдай.

Максим Рындюк Maxim_R

Рейтинг: 74
не верифицирован
Всего отзывов: 0
  • Работ в портфолио: 4
  • Типовых услуг: 0
  • Работ на продажу: 0
Был на сайте:

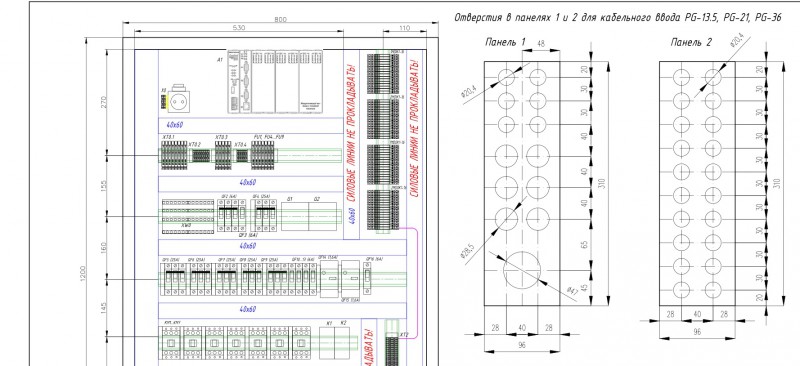
Шкаф системы приточной вентиляции

Используемые навыки:

Описание

Проектирование шкафа системы автоматического управления вентиляцией.
31 дискретный входящий сигнал
23 дискретных исходящих сигнала
1 аналоговый входящий сигнал 4-20 мА

Презентация проекта

pic2500825.jpg

Оценили проект:

0