Ваши идеи — наше вдохновение

Ксения Брус ksyasya27

Рейтинг: 1 610
не верифицирован
Всего отзывов: 15 0
Профессионализм: 10 Коммуникация: 10
  • Активность:
  • Работ в портфолио: 64
  • Типовых услуг: 1
  • Работ на продажу: 0
  • Возраст: 47 лет
  • Стаж работы: 24 года
  • Зарегистрирован: 03.02.2017
  • Образование: Cпециалитет
  • Юридический статус:Самозанятый
Была на сайте:

Описание

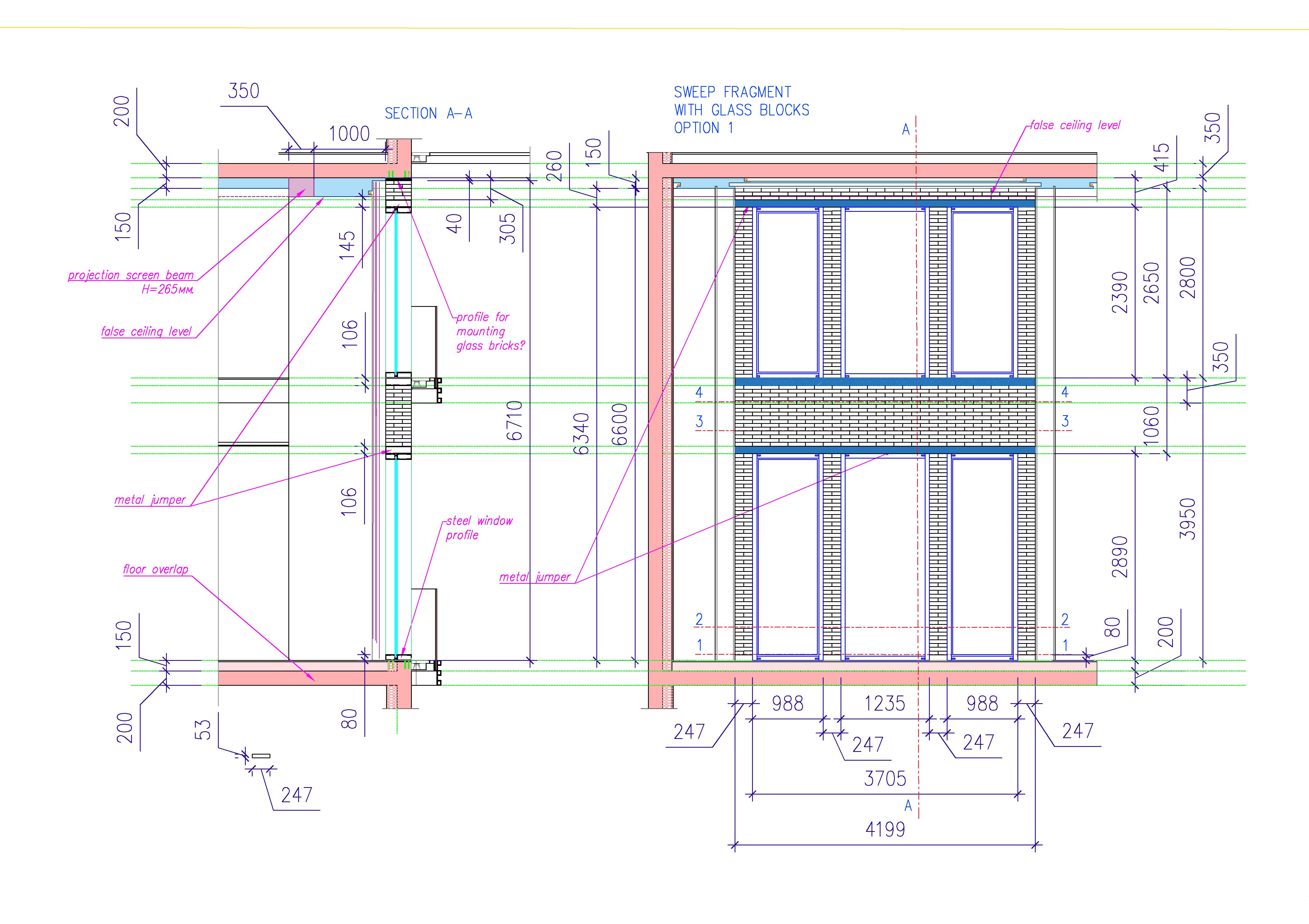
Единое пространство гостиной и столовой на вилле представляет собой сложное стилически-дизайнерское и техническое проектное решение. Клиентом был заказан абсолютно современных в техническом отношении проект 9-этажной виллы. Стилистика представляет собой абсолютную эклектику с акцентом на ардеко и бионику

Решение

Огромный водопад в два этажа по системе гильотина является органичной частью главных помещений виллы. Фасадная часть представляет собой прозрачные стены, сложенные из стеклянных блоков, которые были просчитаны и разработаны с конструкторами, учитывая ветренные погодные условия побережья Монако

Работа выполнена в соавторстве

Презентация проекта

pic3966577.jpg
вид1.jpg
вид3.jpg
вид4.jpg
план.jpg
развертка.jpg
сечение.jpg
водопад_гильотина.jpg
развертка_стены с полками.jpg
водопад_планы.jpg

Оценили проект:

0