Графический дизайн, создание рекламной продукции и фирменного стиля. Pазработке и моделирование интерьеров и общественных помещений, экстерьер, составление чертежей и 3D итоговой визуализации проекта. Владею рисунком от руки.
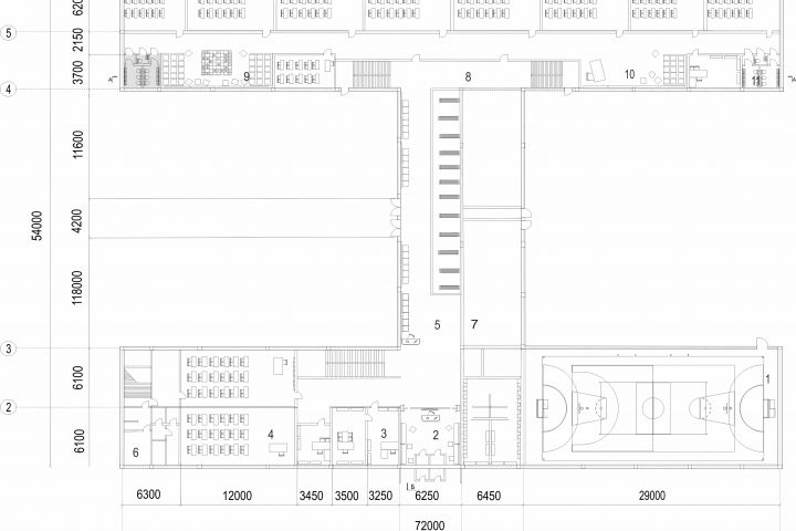
дизайн интерьера школы
проект организации интерьера квартиры
проект организации интерьера кафе
организация интерьера квартиры
элемент оборудования
проект организации пространства детской площадки
давид
фирменный стиль
организация пространства интерьера кафе "Мокко"
проект организации благоустройства детской площадки г.Ульяновск
организация пространства детской площадки
чертеж
рекламная установка
протрет
интерьер квартиры
портрет