Рейтинг: 79
не верифицирован
Всего отзывов: 0
  • Работ в портфолио: 9
  • Типовых услуг: 2
  • Работ на продажу: 0
  • Возраст: 49 лет
  • Стаж работы: 5 лет
  • Зарегистрирован: 17.05.2022
  • Образование: Бакалавриат
  • Юридический статус:Самозанятый
  • Стоимость услуг (руб): 625 за час 60 000 за месяц
Была на сайте:

Планировочное решение

100 руб
сделаю за 3 дня

38

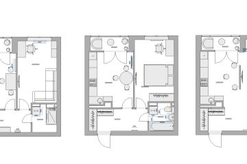
Выполню ПР (планировочное решение) вашей квартиры.
Услуга "Планировочное решение"
100 руб./м.кв
-для тех, кто приобрел новую квартиру, но еще ждет ключи;
-для тех, кто уже получил ключи, но не знает с чего начать;
-для тех, кто подобрал несколько вариантов квартир, но не может определиться с выбором.
Состав работ в рамках услуги:
-Обмерный план помещения (Выполняется на основании предоставленного вами Плана от застройщика или Плана БТИ);
-Два-три варианта планировочного решения на основании ваших пожеланий;

Планировочное решение
Заказать услугу

Вернуться в каталог