3D, Дизайн, Визуализация, Интерьер, Экстерьер

Константин Разговоров ninesonel

Top 10
Рейтинг: 13 204
Паспорт верифицирован
Всего отзывов: 100 1
Профессионализм: 9 Коммуникация: 10
Выполнил заданий: 124
  • Надежность: Использовал: Работал по Безопасной сделке
  • Активность:
  • Работ в портфолио: 195
  • Типовых услуг: 30
  • Работ на продажу: 2
  • Возраст: 23 года
  • Стаж работы: 4 года
  • Зарегистрирован: 23.08.2021
  • Образование: Бакалавриат
  • Стоимость услуг (руб): 1 000 за час 100 000 за месяц
Был на сайте:

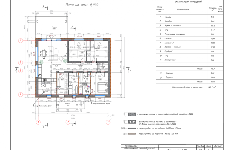
Продаю: Готовые исходники в формате PDF и DWG на проект ТК-2 (147,7 кв.м.)

12 500 руб

331

Услуга включает передачу файлов на проект ТК-2. Референсом работы был проект от компании "GoodWood".

Список разделов, которые включены в проект:
- Общие данные
- План плиты
- План армирования фундаментной плиты
- План на отм. 0,000
- Кладочный план на отм. 0,000
- Ведомость перемычек. СПЕЦИФИКАЦИЯ ЭЛЕМЕНТОВ ПЕРЕМЫЧЕК
- Разрез 1-1
- Разрез 2-2
- Разрез 3-3. Общие указания по устройству кровли
- Фасад А -Г . Фасад Г -А .
- План кровли.
- Схемы заполнения оконных проемов. СПЕЦИФИКАЦИЯ ЭЛЕМЕНТОВ ЗАПОЛНЕНИЯ ПРОЕМОВ
- Схема расположения монолитного пояса Мп1 (опалубочный план)
- План перекрытия. Мауэрлат, лежень, балки перекрытия. Спецификация к деревянному перекрытию.
- План расположения стропильной системы
- ВЕДОМОСТЬ НАРУЖНОЙ ОТДЕЛКИ
- Схема Генерального Плана
- Визуализация
*Проект содержит 23 страницы

Основная информация по ИЖС:
- Несущие стены из газоблока D400 облицованы кирпичом. (цвет на выбор заказчика)., с несущими наружными стенами 400мм и внутренними несущими стенами толщиной 300 мм.
- Внутренние перегородки выполнены из керамического кирпича толщиной 120 мм (котельная и с/у) и из газоблока толщиной 100 и 150мм
- Фундаменты - плита ж/б монолитные
- По верху стен 1 этажа выполнен монолитный ж.б. пояс Мп1 .
- Перекрытие этажа- деревянное по балкам из досок 50х150 по ГОСТ 8486-86, установленные с шагом 600 мм. с покрытием огне-биозащитными составами.

Важно:
- Изменения в исходники с моей стороны не вносятся. Включена в стоимость только передача файлов.

Готовые исходники в формате PDF и DWG на проект ТК-2 (147,7 кв.м.)
Готовые исходники в формате PDF и DWG на проект ТК-2 (147,7 кв.м.)
Готовые исходники в формате PDF и DWG на проект ТК-2 (147,7 кв.м.)