Проектирование МКР в пос. Кузнечиха Ярославская область
Медицинский центр для иностранных граждан в г. Ярославле
Рабочие чертежи зоны отдыха офисного пространства
Визуализация мастерплана МКР Кузнечиха
Визуализация мастерплана МКР Кузнечиха (ППТ)
Визуализация офисного здания IT-компании
Офис IT-компании
Проект межевания микрорайона Дядьково в г. Ярославле
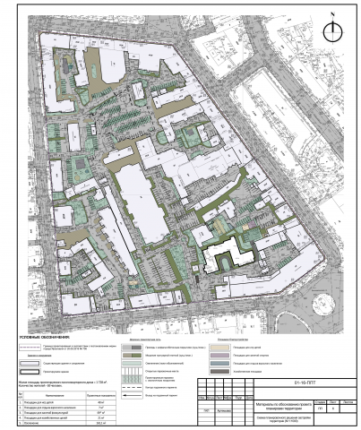
Проект планировки громадной территории. Материалы для местной ад
Планировки офисного здания IT-компании
Схема генплана офисного здания IT-компании
Проект межевания территории
Проект планировки территории. Пример схемы застройки территории
Проект межевания территории. пример основной части по ГК РФ. Сло
Проект межевания территории. пример основной части по ГК РФ
Гостиная для молодой семьи
эко с/у
Спальня в загородном доме
Ванная комната для молодой девушки
комната отдыха в подвале вариант 3
План спальни в деревенском доме