Рейтинг: 140
не верифицирован
Всего отзывов: 7 0
Выполнил заданий: 9
Опубликовал заданий: 70
  • Активность:
  • Работ в портфолио: 25
  • Типовых услуг: 2
  • Работ на продажу: 0
Был на сайте:

Обо мне

Опытные проектировщики! ЦЕНЫ НИЖЕ РЫНОЧНЫХ!
Разделы:
Эскиз
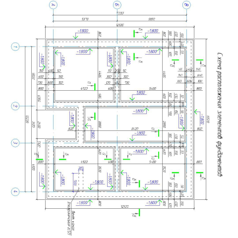
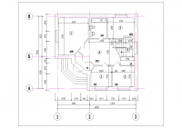
ГП-ген план,
АР — Архитектурные решения
АС — Архитектурно-строительные решения
ВК-Внутренние водопровод и канализация,
КЖ — конструкции железобетонные
КМ — конструкции металлические
КР — Конструктивные решения
КД-конструкции деревянные
КМД- конструкции металлические деталировочные
ОВ-Отопление, вентиляция и кондиционирование воздуха,
ЭГ — молниезащита и заземление
ЭМ — электрооборудование
ЭК — электроснабжение
ЭН — электроосвещение наружное
ЭО — электроосвещение (внутреннее)
ЭС — Электроснабжение,
И МНОГИЕ ДРУГИЕ!!! ПО ЗАПРОСУ!

— Проектирование индивидуальных жилых домов
— Общественных зданий любой сложности и др
— Декоративное оформление фасадов существующих зданий.
— 3D- визуализация.
— Чертежи эскизной и рабочей стадии.
— Авторский надзор.
-Разработка ПСД (Проектно сметной документации)

Подготовка исполнительной документации
-Акты скрытых работ
-Акты входного контроля
-Исполнительные схемы
-Паспорта, сертификаты
Подготовка специальных журналов
-Общих работ
-Бетонных работ
-Сварочных работ
-Другие работы
Разработка и подготовка
-Технологических карт
-ППР
-Графика производства работ

ОГРОМНЫЙ ОПЫТ РАБОТ!!

ЦЕНЫ НИЖЕ РЫНОЧНЫХ!
Звоните, договоримся! Самозанятый, ООО, СРО!

Меня также ищут по запросам : проектировщик инженер специалист стадии документация гостиницы коттеджи фундамент бассейн конструктив каркасный колонны несущий каменные сейсмика антисейсмический газобетон фундамент Колонны монолитный кирпич ракушечник ракушняк известняк газосиликатные магазины многоэтажные этажные сооружения строительство цена купить стоимость прайс недорого дешево согласование геодезия геология бюджет экономно архитектура архитектор план амнистия участок конструктив каркас архитектор проектировщик частные загородные дома виллы отели многоквартирные здания ангары строю возведение построить сдача ввод эксплуатация проект чертежи идеи реконструкция разрешение каркасный колонны несущий пеноблок газоблок монолитные теплоблоки несъемная опалубка построить частный дом

Нанести отклонения на подсистему фасада

Сработали комфортно. Оперативно.

Андрей Овсиенко
18.08.2020
Сделать чертёж

Все выполнено быстро и качественно, буду ещё обращаться, если понадобится .

Ксения Титова
05.04.2020
обмерочный план любого окна

Максим замечательный исполнитель! Понял суть задания мгновенно, выполнил точно в срок! Буду надеяться на дальнейшее сотрудничество.…

Артём
05.07.2018

Задания/вакансии размещенные пользователем Mr Bosi 70

страница 1 из 2