Рейтинг: 150
не верифицирован
Всего отзывов: 7 0
Выполнил заданий: 9
  • Активность:
  • Работ в портфолио: 25
  • Типовых услуг: 0
  • Работ на продажу: 0
  • Возраст: 41 год
  • Стаж работы: 18 лет
  • Зарегистрирован: 31.10.2013
  • Образование: Магистратура
  • Юридический статус:ИП
Был на сайте:

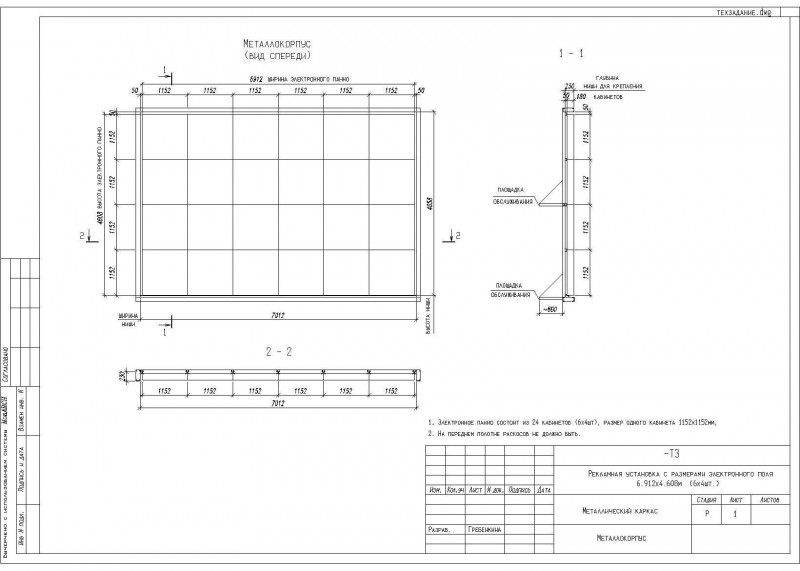
Каркас видеоэкрана

Используемые навыки:

Описание

Конструкция каркаса видеоэкрана представляет собой:
жесткий каркас в форме параллелепипеда, в котором выполняется ниша для размещения электронного табло глубиной 230мм. По периметру электронного полотна имеется зазор - 50мм. При монтаже кабинетов зазор герметизируется уплотнителем. Уплотнитель состоит из гнутого тонколистового швеллера 30х100мм

Презентация проекта

pic1656016.jpg

Оценили проект:

0