План системы вентиляции Поликлинники
Система вентиляции Гимнастического зала
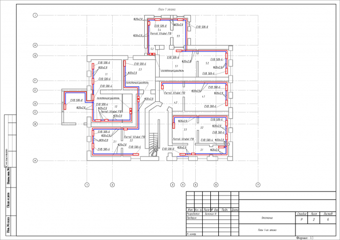
Схема системы отопления на плане
Аксонометрия системы отопления