Гостевая спальня
Детская
Кухня-гостиная
Обмерный план
План сносимых стен
План возводимых стен и конструкций
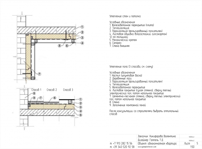
Утепление лоджии
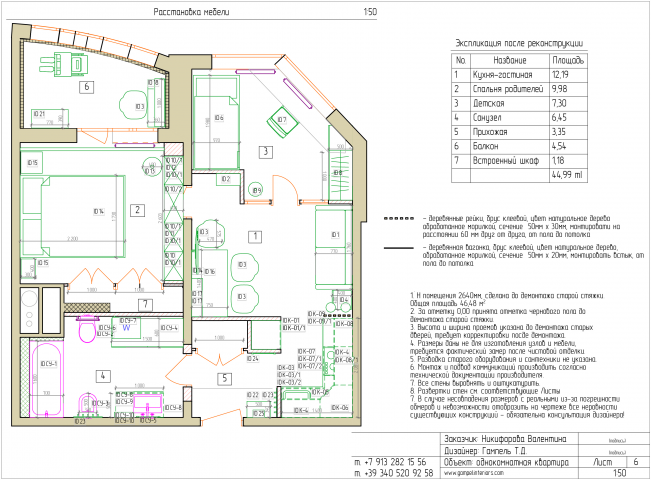
План расстановки мебели
Привязка мебели и оборудования
Техническая документация на сантехнику
Часть сметы на мебель
Прихожая
Moodboard
Спальня родителей