Затвор с редуктором
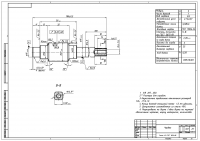
Вал
Затвор дисковый
Корпус
Лампа 2 (solidworks)
Лампа настольная (solidworks)
Торшер (solidworks)
Люстра
Отвал на вилочный погрузчик
Телега большегрузная
Ручной отвал для уборки снега
Ролл-контейнер
Тележка для фляги
Тележка дозатор для реагентов
Редуктор
Паллета для 8-ми кислородных баллонов
Кран-балка на вилочный погрузчик
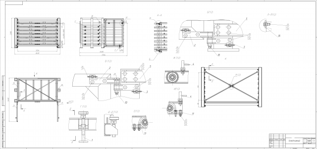
Склад кассетный для листового металлопроката
Тележка для бочек
Тележка для раздачи корма
Тележка платформенная с корзиной
Склад кассетный
Червяк
Крышка