Бог создал преграды, мы строим мосты!

Дмитрий Митяшенков Mostovik

Рейтинг: 293
не верифицирован
Всего отзывов: 25 0
Выполнил заданий: 12
Опубликовал заданий: 7
  • Активность:
  • Работ в портфолио: 68
  • Типовых услуг: 0
  • Работ на продажу: 0
  • Возраст: 37 лет
  • Зарегистрирован: 24.06.2014
Был на сайте:

Обо мне

Если вам нужно разработать ПОС, ПОД, ПОДД, ППР или ТК, но нет возможности содержать сотрудника на зарплате, то это именно ваш вариант.
Работаю удаленно, с выездом на совещания и объект.
Выполнение поставленных задач (от постановки задач до получения результата и отчета о проделанной работе). Быстрая адаптация к сложным проектам на любой стадии проектирования.
Консультирование и предоставление информации входящей в компетенцию, контроль оформления документов, увязка проектных решений.
Сопровождаю проекты в экспертизах, занимаюсь согласованием своих разделов в различных организациях.

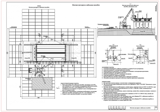
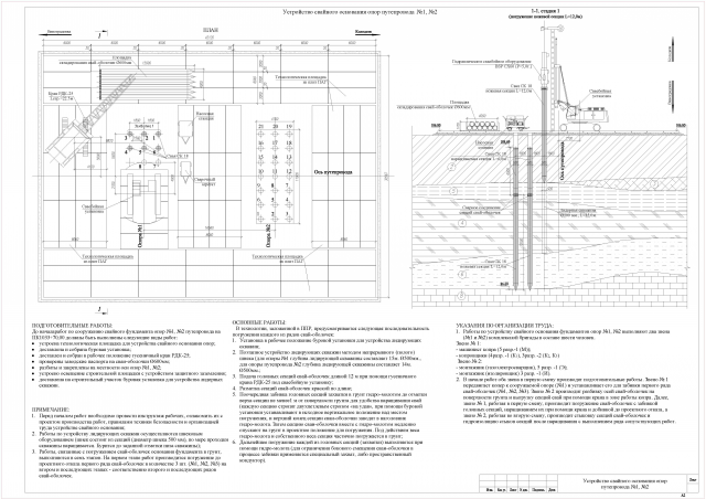
ПОС на перекладку наружных сетей ВК

Всё выполнено качественно и ранее установленного срока. Спасибо за выполненную работу

Игорь Мирошниченко
14.12.2017
Проект демонтажа котельного оборудования

Работа была выполнена в срок. Дмитрий - надежный исполнитель.

Николай
08.12.2017
Разработка ПОСа на кап.ремонт производственного здания 12х57 2 этажа

Все хорошо!

Андрей Суковых
06.12.2017

Проекты в портфолио

Задания/вакансии размещенные пользователем Дмитрий Митяшенков 7

AI Резюме (ru)