Бог создал преграды, мы строим мосты!

Дмитрий Митяшенков Mostovik

Рейтинг: 293
не верифицирован
Всего отзывов: 25 0
Выполнил заданий: 12
Опубликовал заданий: 7
  • Активность:
  • Работ в портфолио: 68
  • Типовых услуг: 0
  • Работ на продажу: 0
Был на сайте:

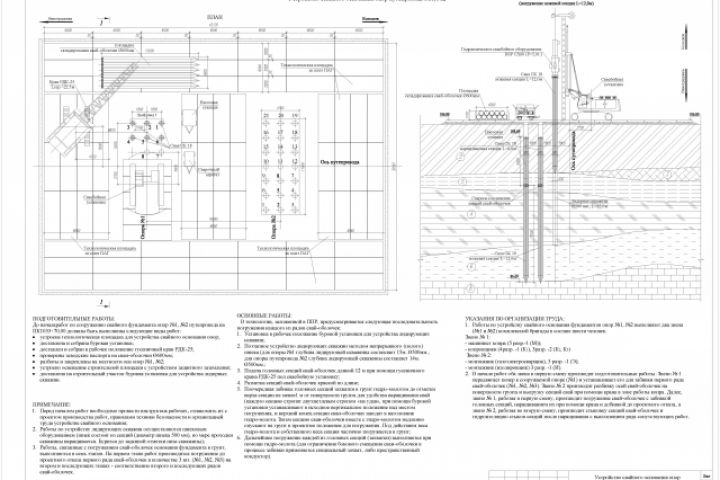
Устройство свайного основания опор путепровода

Используемые навыки:

Описание

ТК на устройство свайного основания опор железнодорожного путепровода на ПК 1033+70.00.

Презентация проекта

pic3302351.jpg

Оценили проект:

0