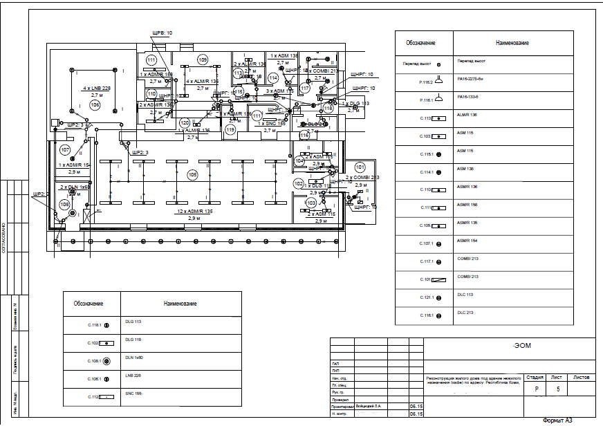
Кафе на 50 посадочных мест
Для полной функциональности этого сайта необходимо включить JavaScript.
Россия
На сайте с: 15.10.2013
Чем больше времени на разработку проекта, тем дешевле для вас.
Leonid Voytsitskiy
ttf64x
Рейтинг: 169
не верифицирован
Всего отзывов:
1
0
Выполнил заданий:
1
Нейросаммари
Активность:
Работ в портфолио:
64
Типовых услуг:
0
Работ на продажу:
0
Был на сайте:
2025-04-20 в 17:24
89612725964
inbox
whatsapp
ttf64x@gmail.com
Предложить работу
Добавить в избранное
Добавить рекомендацию
Пожаловаться
Инженерия
186
0
Кафе на 50 посадочных мест
Используемые навыки:
Электроснабжение
Описание
Решение
Результат
Соавторы
Презентация проекта
Примеры реализации
Описание
Кафе на 50 посадочных мест ЭОМ
Презентация проекта
Оценили проект:
0
×
Оценили проект
×
Авторизация
Для того чтобы оценивать проекты, вам нужно войти на сайт
Другие проекты
Все проекты
моделирование метеорита
Москва, ул Михельсона 6 проект на кап.ремонт
СПОЗУ Схема планировочная застройки участка
FREELANCE.RU
Toggle navigation
Нанять фрилансера
Заказчику
Найти по специализации
Найти по услугам
Провести конкурс
Разместить задание
Другое
Найти работу
Фрилансеру
Найти задание
Присоединиться к команде
Участвовать в конкурсе
Другое
Возможности
Для заказчика
Для фрилансера
Вход
Разместить задание
▲