Рекламный щит
Для полной функциональности этого сайта необходимо включить JavaScript.
Россия
Чем больше времени на разработку проекта, тем дешевле для вас.
Leonid Voytsitskiy
ttf64x
Рейтинг: 169
не верифицирован
Всего отзывов:
1
0
Выполнил заданий:
1
Нейросаммари
Активность:
Работ в портфолио:
64
Типовых услуг:
0
Работ на продажу:
0
Зарегистрирован:
15.10.2013
Был на сайте:
2025-04-20 в 17:24
89612725964
inbox
whatsapp
ttf64x@gmail.com
Предложить работу
Добавить в избранное
Добавить рекомендацию
Пожаловаться
Инженерия
75
0
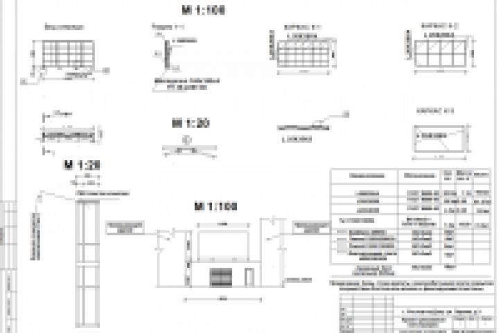
Рекламный щит
Используемые навыки:
Строительные конструкции
Описание
Решение
Результат
Соавторы
Презентация проекта
Примеры реализации
Описание
Рекламный щит
Презентация проекта
Оценили проект:
0
×
Оценили проект
×
Авторизация
Для того чтобы оценивать проекты, вам нужно войти на сайт
Другие проекты
Все проекты
пешеходный мост типа пандус, обшая длина до 30м, монолит расчит
металлическая лестница
Магазин 22х36 м 3 этажа КЖ (МОНОЛИТ) расчитанно в ЛИРЕ 9.6
FREELANCE.RU
Toggle navigation
Нанять фрилансера
Заказчику
Каталог фрилансеров
Каталог PRO
Каталог студий
Каталог услуг
Каталог работ
Виртуальный HR
Умный поиск
Провести конкурс
Разместить задание
Найти работу
Найти задание
Присоединиться к команде
Участвовать в конкурсе
Предложить услугу
Вход
Разместить задание
▲