Рейтинг: 1 538
не верифицирован
Всего отзывов: 1 0
Выполнено заданий: 1
  • Работ в портфолио: 9
  • Типовых услуг: 0
  • Работ на продажу: 0
  • Зарегистрирован: 18.01.2022
  • Юридический статус:ИП
Был на сайте:

КПП Уралкалий

Используемые навыки:

Описание

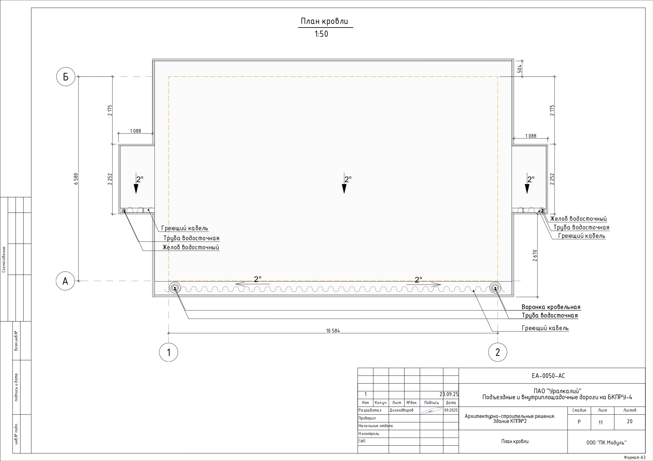
Здание контрольно-пропускного пункта (КПП № 2)
В рамках проекта выполнена разработка архитектурно-строительных решений для здания контрольно-пропускного пункта № 2 в составе объекта «Подъездные и внутриплощадочные дороги на БКПРУ-4» ПАО «Уралкалий».

Здание КПП представляет собой одноэтажное блочно-модульное сооружение заводской готовности, предназначенное для размещения постов охраны, помещений контроля доступа, инженерных и вспомогательных помещений. Проект разработан в стадии «Р» с учетом требований промышленной, пожарной и эксплуатационной безопасности.
Здание выполнено из пяти блок-модулей, соединяемых на строительной площадке в единую пространственную конструкцию. Планировочные решения обеспечивают функциональное разделение зон охраны, технических и бытовых помещений. В составе здания предусмотрены посты охраны, помещение охраны, санитарный узел, ИТП, серверная, электрощитовая, тамбуры и коридор.
Здание относится к объектам с уровнем ответственности КС2, степенью огнестойкости IV, классом функциональной пожарной опасности Ф4.3. Расчетный срок службы здания составляет не менее 25 лет при условии соблюдения регламентов эксплуатации и своевременного проведения ремонтных работ.

Презентация проекта

КПП №2 Уралкалий. Визуал..jpg
КПП №2 Уралкалий_page-0001.jpg
КПП №2 Уралкалий_page-0003.jpg
КПП №2 Уралкалий_page-0008.jpg
КПП №2 Уралкалий_page-0009.jpg
КПП №2 Уралкалий_page-0010.jpg

Оценили проект:

0