Рейтинг: 54
не верифицирован
Всего отзывов: 0
  • Работ в портфолио: 4
  • Типовых услуг: 0
  • Работ на продажу: 0
Был на сайте:

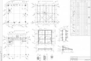
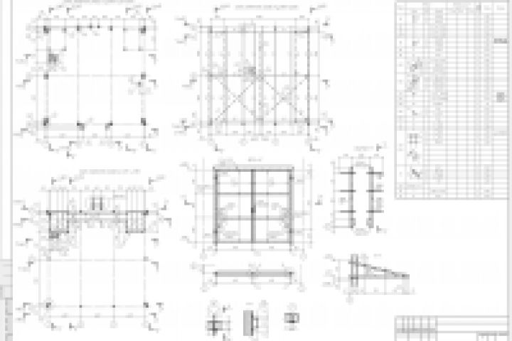
Склад с подвесным краном

Описание

Одноэтажное складское помещение с подвесным краном г/п 3,2т
Мной выполнен прочностной расчет металлоконструкций и чертежи стадии КМ

Презентация проекта

pic2112979.jpg

Оценили проект:

0