Хочешь жить-умей вертеться!!!

Виктор Виниченко Borch

Рейтинг: 116
не верифицирован
Всего отзывов: 1 0
  • Активность:
  • Работ в портфолио: 16
  • Типовых услуг: 0
  • Работ на продажу: 0
Был на сайте:

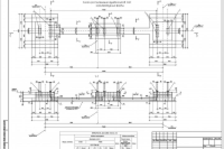
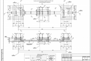
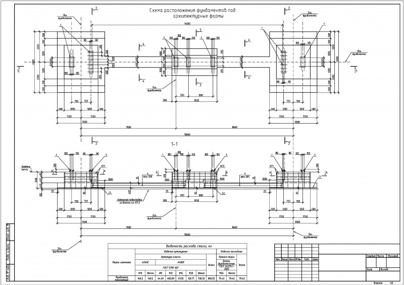
Фундаменты под малые архитектурные формы

Используемые навыки:

Описание

Был произведен расчет и конструирование фундаментов под арку.

Презентация проекта

pic2317806.jpg
Фундаменты-Лист2.jpg

Оценили проект:

0