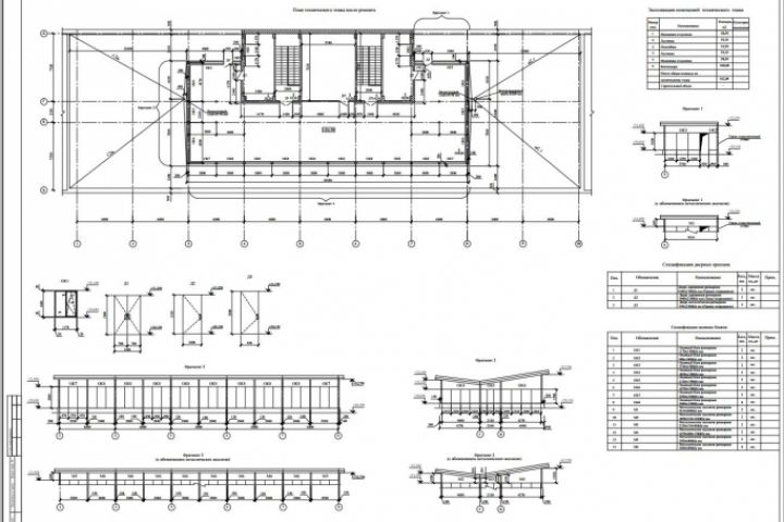
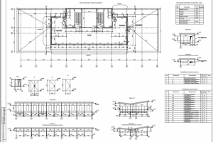
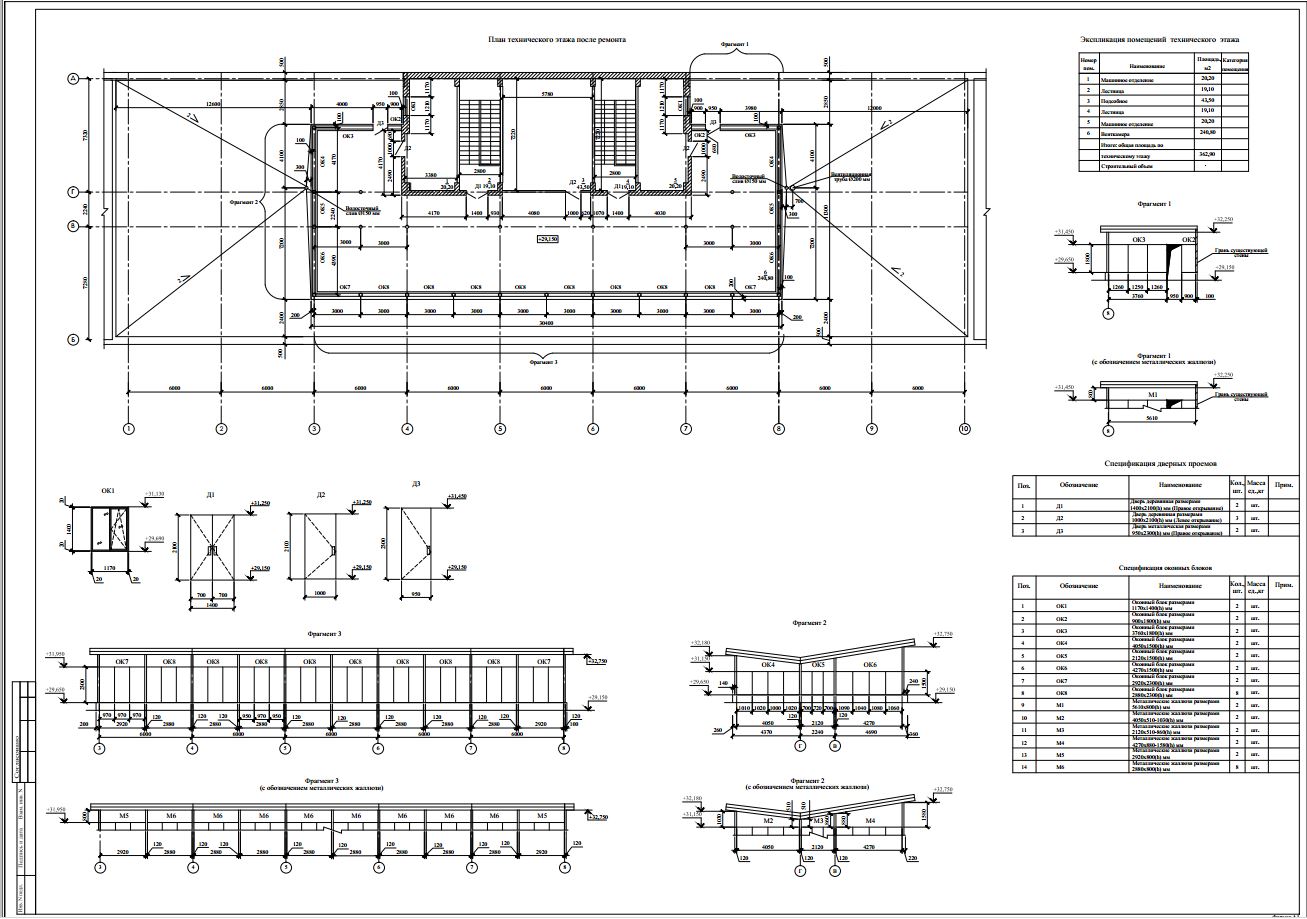
Капитальный ремонт технического этажа здания
Для полной функциональности этого сайта необходимо включить JavaScript.
Волгоград
нет ничего невозможного
Никита Страчков
kutrek
Рейтинг: 86
Паспорт верифицирован
Всего отзывов:
2
0
Профессионализм:
10
Коммуникация:
10
Выполнил заданий:
2
Нейросаммари
Работ в портфолио:
16
Типовых услуг:
1
Работ на продажу:
0
Стаж работы:
8 лет
Зарегистрирован:
05.04.2019
Образование:
Магистратура
Юридический статус:
Частное лицо
Стоимость услуг (руб):
500
за час
120 000
за месяц
Был на сайте:
2026-04-19 в 13:55
inbox
telegram
Предложить работу
Добавить в избранное
Добавить рекомендацию
Пожаловаться
Инженерия
43
0
Капитальный ремонт технического этажа здания
Используемые навыки:
Промышленное и гражданское строительство
Описание
Решение
Результат
Соавторы
Презентация проекта
Примеры реализации
Описание
Презентация проекта
Оценили проект:
0
×
Оценили проект
×
Авторизация
Для того чтобы оценивать проекты, вам нужно войти на сайт
Другие проекты
Все проекты
Разработка навеса
Разработка каркасных зданий (металл)
Визуализация многоэтажного жилого дома
FREELANCE.RU
Toggle navigation
Нанять фрилансера
Заказчику
Каталог фрилансеров
Каталог PRO
Каталог студий
Каталог услуг
Каталог работ
Виртуальный HR
Умный поиск
Провести конкурс
Разместить задание
Найти работу
Найти задание
Присоединиться к команде
Участвовать в конкурсе
Предложить услугу
Вход
Разместить задание
▲