"В программировании всё возможно" (машина Тьюринга:-))

Александр Симатов aleksfrom

Рейтинг: 63
не верифицирован
Всего отзывов: 0
  • Работ в портфолио: 3
  • Типовых услуг: 0
  • Работ на продажу: 0
Был на сайте:

Калькулятор ремонта помещений

Используемые навыки:

Описание

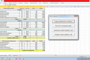
На базе MS Excel средствами VBA создан "Калькулятор ремонтных работ". Он представляет из себя два листа Excel. На одном расположены справочники помещений и видов работ, на другом - макет заказа. Из макета можно с помощью макроса создать заказ и потом его оформить, пользуясь выпадающими списками и автоматическим расчётом цены. После формирования заказа с объёмами работ, ценами и стоимостью "Калькулятор" может рассчитать стоимость расходных материалов для выполнения ремонта. Средствами "Калькулятора" можно заранее создать неограниченное количество шаблонов заказа "на все случаи жизни", чтобы потом облегчить жизнь менеджерам, формирующим заказы для клиентов. Заказы можно сохранять и печатать в формате .pdf файлов.

Ссылки на примеры реализации

 youtu.be/nQ9VCEK09pQ

Презентация проекта

pic3626232.jpg

Оценили проект:

0