Архитектурно-строительные конструкции
Для полной функциональности этого сайта необходимо включить JavaScript.
Санкт-Петербург
24 года
На сайте с: 09.01.2021
Любовь Щеглова
svr71
Рейтинг: 73
не верифицирован
Всего отзывов:
0
Работ в портфолио:
3
Типовых услуг:
0
Работ на продажу:
0
Была на сайте:
2021-01-11 в 14:00
inbox
Предложить работу
Добавить в избранное
Добавить рекомендацию
Пожаловаться
Дизайн пространства
10
0
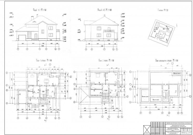
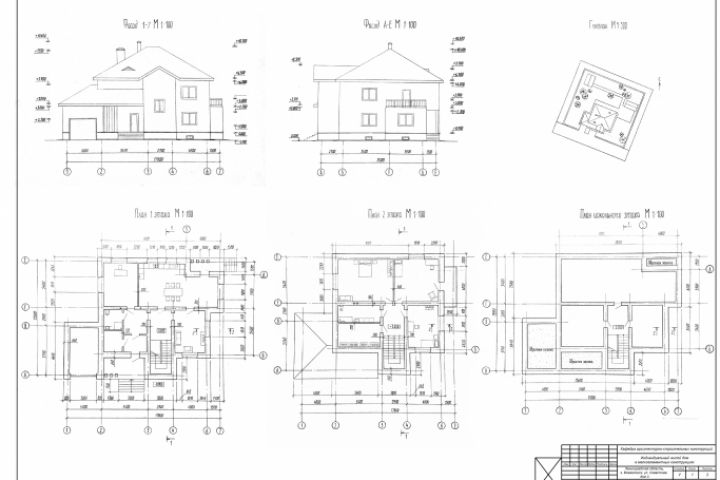
Архитектурно-строительные конструкции
Описание
Решение
Результат
Соавторы
Презентация проекта
Примеры реализации
Описание
Чертежи от руки или в AutoCAD
Презентация проекта
Оценили проект:
0
×
Оценили проект
×
Авторизация
Для того чтобы оценивать проекты, вам нужно войти на сайт
Другие проекты
Все проекты
Акустика концертного зала (AutoCAD)
Функциональное зонирование сквера (AutoCAD)
FREELANCE.RU
Toggle navigation
Нанять фрилансера
Заказчику
Найти по специализации
Найти по услугам
Провести конкурс
Разместить задание
Виртуальный HR
Другое
Найти работу
Фрилансеру
Найти задание
Присоединиться к команде
Участвовать в конкурсе
Другое
Возможности
Для заказчика
Для фрилансера
Вход
Разместить задание
▲