Рейтинг: 48
не верифицирован
Всего отзывов: 0
  • Работ в портфолио: 8
  • Типовых услуг: 0
  • Работ на продажу: 0
Была на сайте:

Revit

Используемые навыки:

Описание

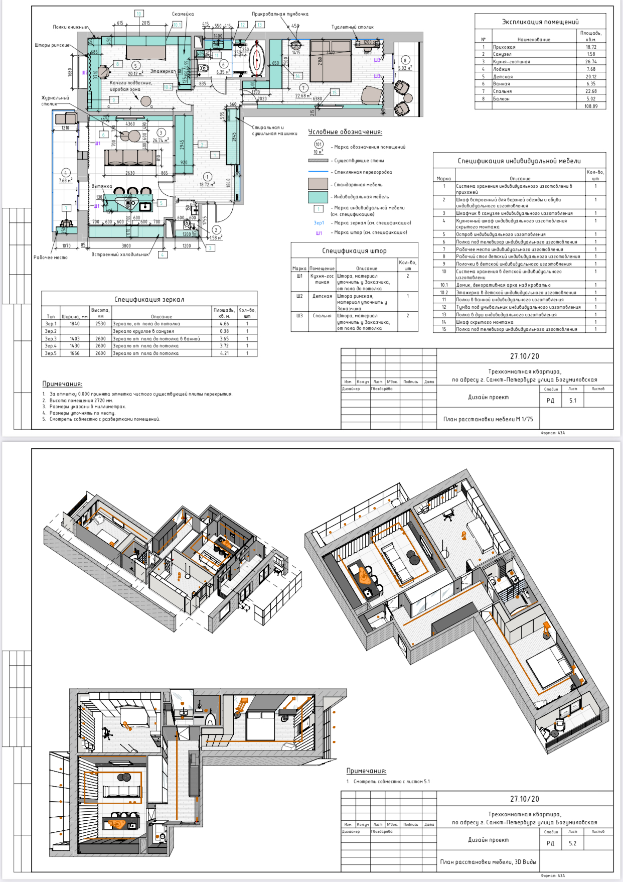
План расстановки мебели со спецификациями и 3D видами.

Ссылки на примеры реализации

 www.behance.net/hvozdarova

Презентация проекта

pic4048665.jpg

Оценили проект:

0