План здания
Для полной функциональности этого сайта необходимо включить JavaScript.
Харьков
Виктор Божко
ViBo3D
Рейтинг: 169
не верифицирован
Всего отзывов:
9
0
Выполнил заданий:
9
Активность:
Работ в портфолио:
24
Типовых услуг:
0
Работ на продажу:
0
Возраст:
44 года
Зарегистрирован:
04.11.2012
Был на сайте:
2021-03-07 в 18:19
inbox
v.p.b@mail.ru
Предложить работу
Добавить в избранное
Добавить рекомендацию
Пожаловаться
Инженерия
27
0
План здания
Используемые навыки:
Чертежи/Схемы
Описание
Решение
Результат
Соавторы
Презентация проекта
Примеры реализации
Описание
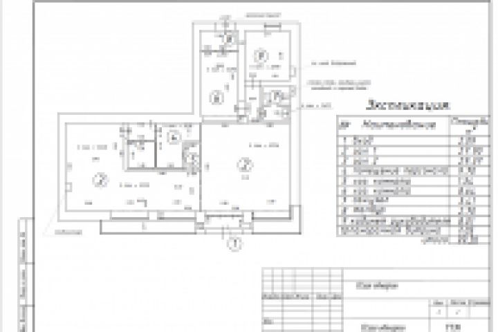
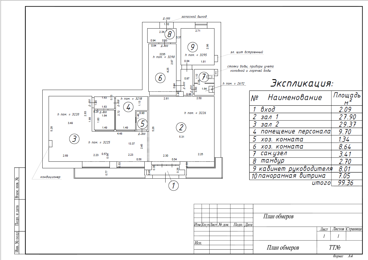
Вычерчивание обмерочного плана в AutoCAD
Презентация проекта
Оценили проект:
0
×
Оценили проект
×
Авторизация
Для того чтобы оценивать проекты, вам нужно войти на сайт
Другие проекты
Все проекты
Моделирование по чертежам
планировка квартиры
отрисовка балконного блока
FREELANCE.RU
Toggle navigation
Нанять фрилансера
Заказчику
Найти по специализации
Найти по услугам
Провести конкурс
Разместить задание
Виртуальный HR
Найти студию
Другое
Найти работу
Фрилансеру
Найти задание
Присоединиться к команде
Участвовать в конкурсе
Предложить услугу
Другое
Возможности
Для заказчика
Для фрилансера
Вход
Разместить задание
▲