Электрическая, принципиально-монтажная схема управления
Для полной функциональности этого сайта необходимо включить JavaScript.
На сайте с: 16.03.2019
Никита Семенов
asutp696
Рейтинг: 35
не верифицирован
Всего отзывов:
0
Работ в портфолио:
5
Типовых услуг:
0
Работ на продажу:
0
Был на сайте:
2021-03-24 в 21:24
+79215562686
inbox
semenoff696@mail.ru
Предложить работу
Добавить в избранное
Добавить рекомендацию
Пожаловаться
Инженерия
92
0
Электрическая, принципиально-монтажная схема управления
Используемые навыки:
Слаботочные системы
Описание
Решение
Результат
Соавторы
Презентация проекта
Примеры реализации
Описание
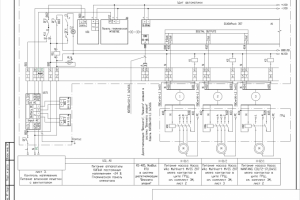
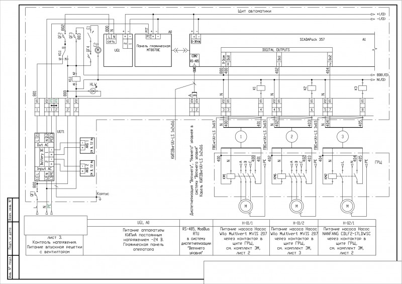
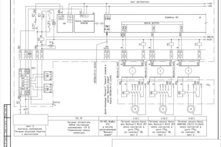
Пример выполнения электрических схем
Презентация проекта
Оценили проект:
0
×
Оценили проект
×
Авторизация
Для того чтобы оценивать проекты, вам нужно войти на сайт
Другие проекты
Все проекты
Структурная схема автоматической противопожарной защиты
Эскизный чертеж общего вида
Схема автоматизации вентиляционной установки
FREELANCE.RU
Toggle navigation
Нанять фрилансера
Заказчику
Найти по специализации
Найти по услугам
Провести конкурс
Разместить задание
Другое
Найти работу
Фрилансеру
Найти задание
Присоединиться к команде
Участвовать в конкурсе
Другое
Возможности
Для заказчика
Для фрилансера
Вход
Разместить задание
▲