Терпение и Труд!

Дмитрий Гриц Mithra

Рейтинг: 84
не верифицирован
Всего отзывов: 0
  • Работ в портфолио: 24
  • Типовых услуг: 0
  • Работ на продажу: 0
Был на сайте:

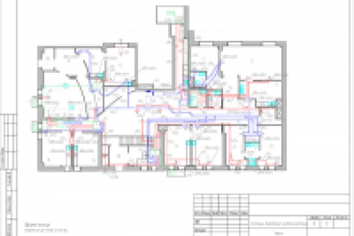
Стоматологическая клиника

Описание

Вентиляция и кондиционирование стоматологической клиники.

Презентация проекта

pic2600764.jpg

Оценили проект:

0