Разработка мобильных приложений под iOS

Алексей Панков Alexey8_8

Рейтинг: 205
не верифицирован
Всего отзывов: 6 0
Выполнил заданий: 3
  • Активность:
  • Работ в портфолио: 40
  • Типовых услуг: 0
  • Работ на продажу: 0
Был на сайте:

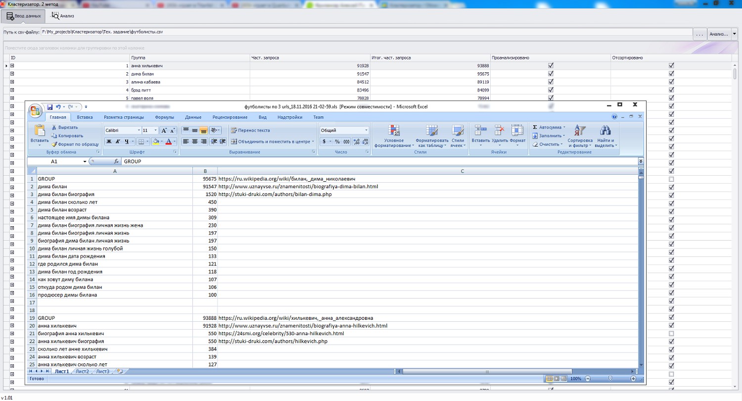
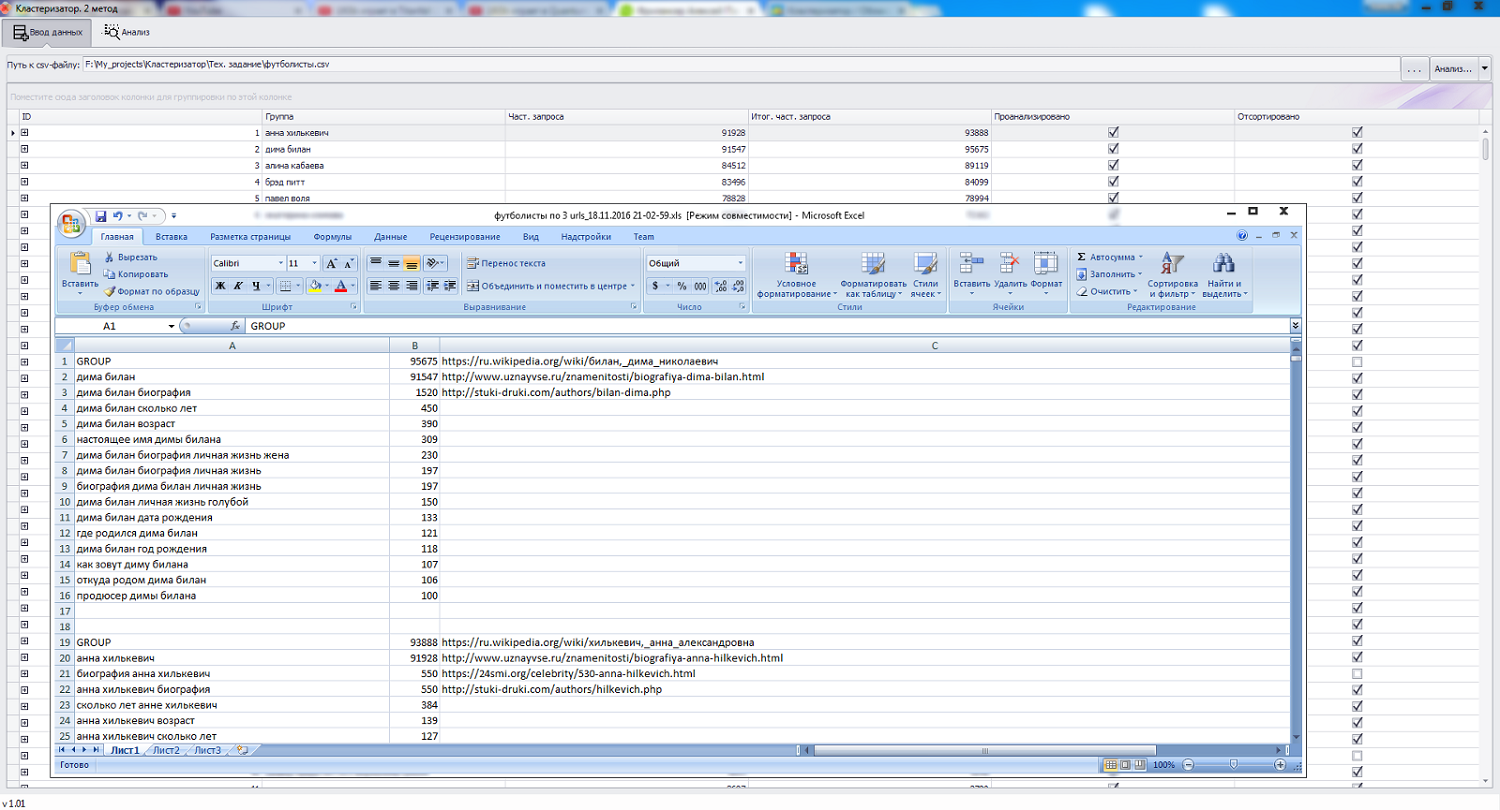
Кластеризатор (SEO)

Используемые навыки:

Описание

Группировка ключевых слов, поданных на вход, на основании привязки по совпадениям URL-адресов.
Группировка по методу центройдов: берется первый запрос по порядку, и происходит поиск совместимых с ним запросов по принципу совпадения n URL-адресов (где n - любое кол-во URL-адресов, большее нуля).
Во всех образовавшихся группах считается суммарная частотность запросов. Результирующую группу остается с наибольшей частотностью.
Принцип работы:
- группы отсортированы между собой от самой частотной по сумме запросов к ней до самой низкочастотной
- запросы внутри групп также отсортированы по убыванию
- в правом столбце каждой группы указывается, по каким n URL-адресам нашлись совпадения
- после всех отсортированных групп в виде отдельной группы выводятся неотсортированные запросы

Особенности:
- экспорт в структурированный .xls файл
- импорт (загрузка) данных из .cvs-файла

Ссылки на примеры реализации

 cloud.mail.ru/public/DEtN/yanBvfaPo

Презентация проекта

pic2987500.jpg
Скрин1.png

Оценили проект:

0