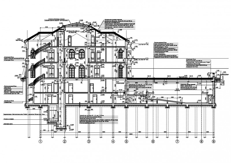
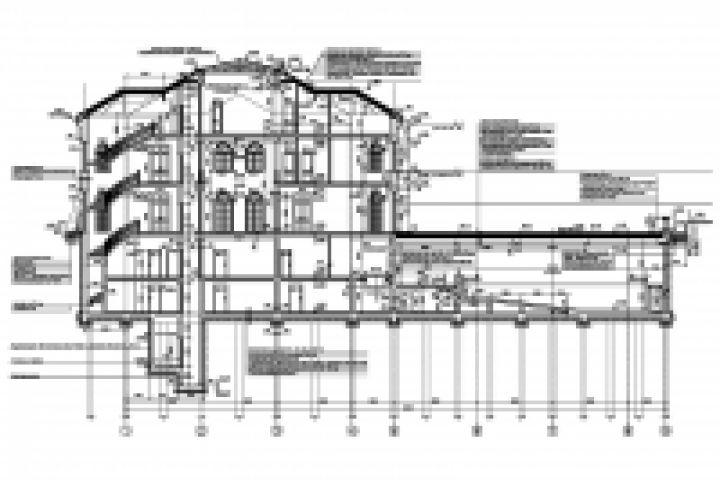
Коттедж в Сочи. Разрез. 2008 г.
Для полной функциональности этого сайта необходимо включить JavaScript.
Москва
56 лет
На сайте с: 03.12.2012
Мария Щербакова
mashascherbakova
Рейтинг: 190
не верифицирован
Всего отзывов:
2
0
Нейросаммари
Работ в портфолио:
100
Типовых услуг:
0
Работ на продажу:
0
Была на сайте:
2026-01-16 в 10:20
+79153627781
inbox
iskoskov@mtu-net.ru
Предложить работу
Добавить в избранное
Добавить рекомендацию
Пожаловаться
Дизайн пространства
38
0
Коттедж в Сочи. Разрез. 2008 г.
Используемые навыки:
Архитектура зданий и сооружений
Описание
Решение
Результат
Соавторы
Презентация проекта
Примеры реализации
Описание
Презентация проекта
Оценили проект:
0
×
Оценили проект
×
Авторизация
Для того чтобы оценивать проекты, вам нужно войти на сайт
Другие проекты
Все проекты
Пождепо, ул. Березовая аллея, 2008 г.
Логотип проектного бюро. 2014 г.
Цирк на Вернадского, перекрытие дворов, 2009 г.
FREELANCE.RU
Toggle navigation
Нанять фрилансера
Заказчику
Найти по специализации
Найти по услугам
Провести конкурс
Разместить задание
Виртуальный HR
Другое
Найти работу
Фрилансеру
Найти задание
Присоединиться к команде
Участвовать в конкурсе
Предложить услугу
Другое
Возможности
Для заказчика
Для фрилансера
Вход
Разместить задание
▲