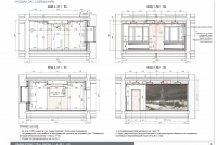
Надым. Зал совещаний. Развертки стен. 2013 г.
Для полной функциональности этого сайта необходимо включить JavaScript.
Москва
56 лет
На сайте с: 03.12.2012
Мария Щербакова
mashascherbakova
Рейтинг: 190
не верифицирован
Всего отзывов:
2
0
Нейросаммари
Работ в портфолио:
100
Типовых услуг:
0
Работ на продажу:
0
Была на сайте:
2026-01-16 в 10:20
+79153627781
inbox
iskoskov@mtu-net.ru
Предложить работу
Добавить в избранное
Добавить рекомендацию
Пожаловаться
Дизайн пространства
34
0
Надым. Зал совещаний. Развертки стен. 2013 г.
Используемые навыки:
Архитектура зданий и сооружений
Описание
Решение
Результат
Соавторы
Презентация проекта
Примеры реализации
Описание
Презентация проекта
Оценили проект:
0
×
Оценили проект
×
Авторизация
Для того чтобы оценивать проекты, вам нужно войти на сайт
Другие проекты
Все проекты
Обложка к ДП Офисного здания. 2019 г.
Коттедж в Нахабино. Эскиз комнаты бабушки. 2006 г.
Барбекю в Заокском. Фото с макета. 2014 г.
FREELANCE.RU
Toggle navigation
Нанять фрилансера
Заказчику
Найти по специализации
Найти по услугам
Провести конкурс
Разместить задание
Виртуальный HR
Другое
Найти работу
Фрилансеру
Найти задание
Присоединиться к команде
Участвовать в конкурсе
Предложить услугу
Другое
Возможности
Для заказчика
Для фрилансера
Вход
Разместить задание
▲