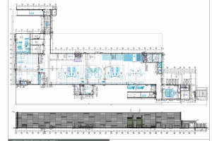
Литейный цех. 2019 г.
Для полной функциональности этого сайта необходимо включить JavaScript.
Москва
56 лет
На сайте с: 03.12.2012
Мария Щербакова
mashascherbakova
Рейтинг: 190
не верифицирован
Всего отзывов:
2
0
Нейросаммари
Работ в портфолио:
100
Типовых услуг:
0
Работ на продажу:
0
Была на сайте:
2026-01-16 в 10:20
+79153627781
inbox
iskoskov@mtu-net.ru
Предложить работу
Добавить в избранное
Добавить рекомендацию
Пожаловаться
Дизайн пространства
36
0
Литейный цех. 2019 г.
Используемые навыки:
Архитектура зданий и сооружений
Описание
Решение
Результат
Соавторы
Презентация проекта
Примеры реализации
Описание
Презентация проекта
Оценили проект:
0
×
Оценили проект
×
Авторизация
Для того чтобы оценивать проекты, вам нужно войти на сайт
Другие проекты
Все проекты
Цирк на Вернадского, перекрытие дворов, 2009 г.
Магазин в Пензе. Варианты. 2013 г.
ДРЦ на Белореченской ул. Стадия П. 2018 г.
FREELANCE.RU
Toggle navigation
Нанять фрилансера
Заказчику
Найти по специализации
Найти по услугам
Провести конкурс
Разместить задание
Виртуальный HR
Другое
Найти работу
Фрилансеру
Найти задание
Присоединиться к команде
Участвовать в конкурсе
Предложить услугу
Другое
Возможности
Для заказчика
Для фрилансера
Вход
Разместить задание
▲