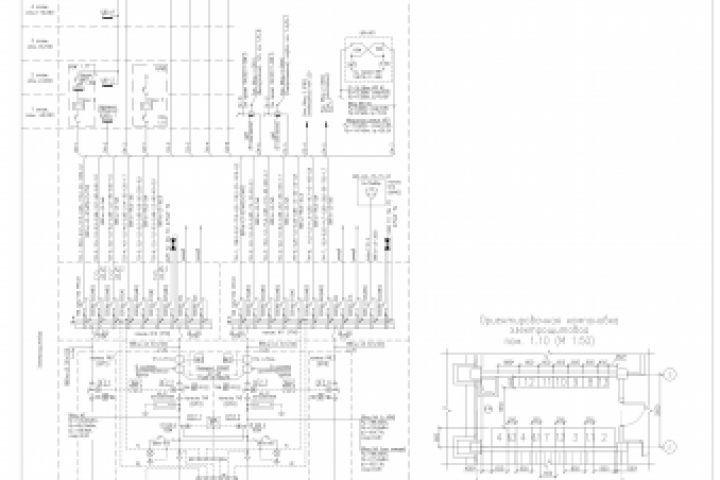
Однолинейная схема электроснабжения Банка г. Москва
Для полной функциональности этого сайта необходимо включить JavaScript.
Москва
На сайте с: 25.10.2018
Екатерина Демченко
eaelectric
Рейтинг: 72
не верифицирован
Всего отзывов:
0
Работ в портфолио:
12
Типовых услуг:
0
Работ на продажу:
0
Была на сайте:
2021-08-28 в 00:36
89003572793
inbox
katya.demchenko.87@mail.ru
Предложить работу
Добавить в избранное
Добавить рекомендацию
Пожаловаться
Инженерия
14
0
Однолинейная схема электроснабжения Банка г. Москва
Используемые навыки:
Электроснабжение
Описание
Решение
Результат
Соавторы
Презентация проекта
Примеры реализации
Описание
Презентация проекта
Оценили проект:
0
×
Оценили проект
×
Авторизация
Для того чтобы оценивать проекты, вам нужно войти на сайт
Другие проекты
Все проекты
План сетей 10кВ
План электроосвещения Детский сад г. Подольск
План распределительных сетей крытая ледовая арена г. Дмитров
FREELANCE.RU
Toggle navigation
Нанять фрилансера
Заказчику
Найти по специализации
Найти по услугам
Провести конкурс
Разместить задание
Виртуальный HR
Другое
Найти работу
Фрилансеру
Найти задание
Присоединиться к команде
Участвовать в конкурсе
Предложить услугу
Другое
Возможности
Для заказчика
Для фрилансера
Вход
Разместить задание
▲