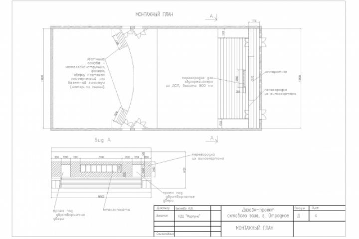
план актового зала
Для полной функциональности этого сайта необходимо включить JavaScript.
Санкт-Петербург
На сайте с: 24.01.2015
Анна Беляева
belka7
Рейтинг: 270
не верифицирован
Всего отзывов:
0
Активность:
Работ в портфолио:
60
Типовых услуг:
0
Работ на продажу:
0
Была на сайте:
2021-09-10 в 00:16
inbox
Предложить работу
Добавить в избранное
Добавить рекомендацию
Пожаловаться
Дизайн пространства
150
0
план актового зала
Используемые навыки:
Дизайн интерьеров
Описание
Решение
Результат
Соавторы
Презентация проекта
Примеры реализации
Описание
Презентация проекта
Оценили проект:
0
×
Оценили проект
×
Авторизация
Для того чтобы оценивать проекты, вам нужно войти на сайт
Другие проекты
Все проекты
дача в кантри стиле
развертка стен пирожковой
квартира в классическом стиле план
FREELANCE.RU
Toggle navigation
Нанять фрилансера
Заказчику
Найти по специализации
Найти по услугам
Провести конкурс
Разместить задание
Виртуальный HR
Другое
Найти работу
Фрилансеру
Найти задание
Присоединиться к команде
Участвовать в конкурсе
Другое
Возможности
Для заказчика
Для фрилансера
Вход
Разместить задание
▲