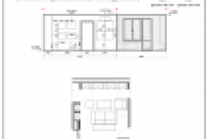
Развертка стен. Гостиная
Для полной функциональности этого сайта необходимо включить JavaScript.
Кишинев
На сайте с: 10.01.2012
Александр Кучерявый
Curly_studio
Рейтинг: 150
не верифицирован
Всего отзывов:
0
Работ в портфолио:
100
Типовых услуг:
0
Работ на продажу:
0
Был на сайте:
2021-09-10 в 00:29
inbox
Предложить работу
Добавить в избранное
Добавить рекомендацию
Пожаловаться
Инженерия
12
0
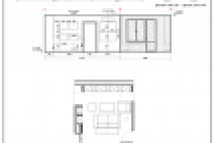
Развертка стен. Гостиная
Используемые навыки:
Чертежи/Схемы
Описание
Решение
Результат
Соавторы
Презентация проекта
Примеры реализации
Описание
Презентация проекта
Оценили проект:
0
×
Оценили проект
×
Авторизация
Для того чтобы оценивать проекты, вам нужно войти на сайт
Другие проекты
Все проекты
Дизайн квартиры 40 кв.м
Дизайн квартиры-студии 32 кв.м
Визуализация загородного дома (Digital Bakery)
FREELANCE.RU
Toggle navigation
Нанять фрилансера
Заказчику
Найти по специализации
Найти по услугам
Провести конкурс
Разместить задание
Виртуальный HR
Другое
Найти работу
Фрилансеру
Найти задание
Присоединиться к команде
Участвовать в конкурсе
Предложить услугу
Другое
Возможности
Для заказчика
Для фрилансера
Вход
Разместить задание
▲