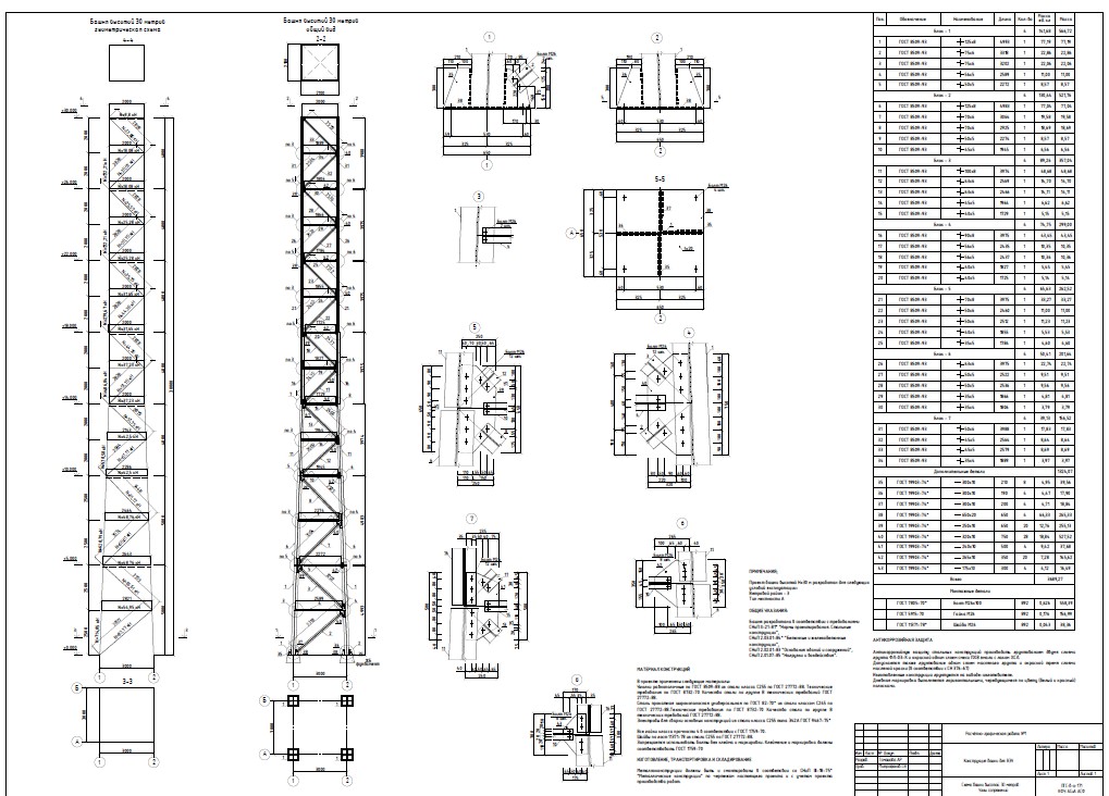
Расчет и конструирование башни высотой 30 м
Для полной функциональности этого сайта необходимо включить JavaScript.
Симферополь
Только вперёд!
Анастасия Томашова
tttomashova
Рейтинг: 82
Паспорт верифицирован
Всего отзывов:
0
Работ в портфолио:
12
Типовых услуг:
0
Работ на продажу:
0
Возраст:
26 лет
Зарегистрирован:
01.06.2021
Была на сайте:
2021-10-16 в 17:19
+7 (978) 890 36 33
inbox
whatsapp
Предложить работу
Добавить в избранное
Добавить рекомендацию
Пожаловаться
Инженерия
15
0
Расчет и конструирование башни высотой 30 м
Используемые навыки:
Промышленное и гражданское строительство
Описание
Решение
Результат
Соавторы
Презентация проекта
Примеры реализации
Описание
Презентация проекта
Оценили проект:
0
×
Оценили проект
×
Авторизация
Для того чтобы оценивать проекты, вам нужно войти на сайт
Другие проекты
Все проекты
Расчет и конструирование плиты перекрытия ТЦ, с помощью ПК ЛИРА
Конструирование второстепенной балки в 4-х этажном пром.здании
Расчет и конструирование фермы в пром.здании
FREELANCE.RU
Toggle navigation
Нанять фрилансера
Заказчику
Найти по специализации
Найти по услугам
Провести конкурс
Разместить задание
Виртуальный HR
Найти студию
Другое
Найти работу
Фрилансеру
Найти задание
Присоединиться к команде
Участвовать в конкурсе
Предложить услугу
Другое
Возможности
Для заказчика
Для фрилансера
Вход
Разместить задание
▲