Красота в гармонии и простоте

Юлия Мазина mazina_yuliya

Рейтинг: 69
не верифицирован
Всего отзывов: 0
  • Работ в портфолио: 9
  • Типовых услуг: 0
  • Работ на продажу: 0
Была на сайте:

Коттедж без карнизного свеса

Используемые навыки:

Описание

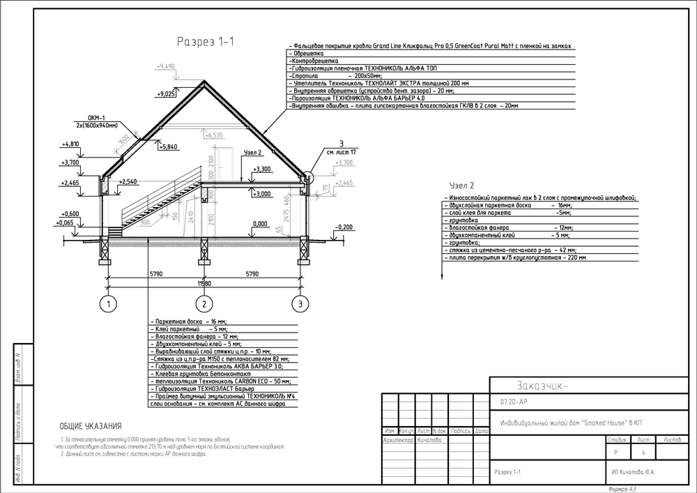
Заказчик - приверженец современного стиля. Вариант в минималистичном исполнении был утвержден сразу. В лаконичный объем как бы встроены уличные зоны отдыха - террасы с парадной и задней сторон здания. Отделка фасадов выполнена по системе мокрый фасад /штукатурка/ цвета графит и обшивка планкеном из ясеня натурального цвета в зоне террас. Отделка кровли - фальцевые листы в цвет фасада, графит. Водоотведение с кровли - скрытая водосточная система, водосток устанавливается в конструкции стены.
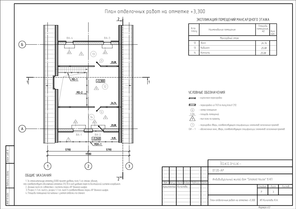
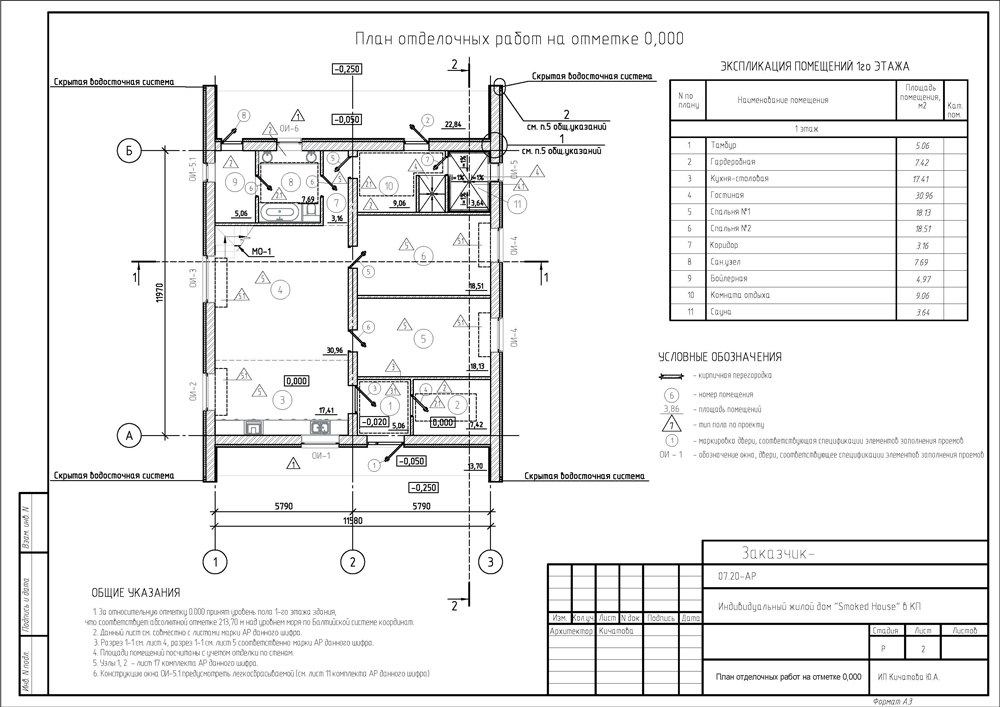
В этом объекте большое внимание уделяется зонам досуга, отдыха, т.к. всю свою жизнь семья из 3х человек проводит дома. Весь мансардный этаж выделен под кабинеты, спортивная зона, игровая, домашний кинотеатр. Жилые помещения расположились на первом этаже - это было принципиальным решением.

Презентация проекта

pic4192220.jpg
2.jpg
3.jpg
4.jpg
АР02.jpg
АР_Страница_03.jpg
АР_Страница_04.jpg
АР_Страница_05.jpg
АР_Страница_20.jpg
АР_Страница_21.jpg
АР_Страница_22.jpg
ГП_Страница_1.jpg
ГП_Страница_2.jpg
ГП_Страница_4.jpg

Оценили проект:

0