Рейтинг: 156
не верифицирован
Всего отзывов: 3 0
Выполнил заданий: 5
  • Активность:
  • Работ в портфолио: 81
  • Типовых услуг: 0
  • Работ на продажу: 0
  • Зарегистрирован: 18.05.2012
Был на сайте:

Бункер_1

Используемые навыки:

Описание

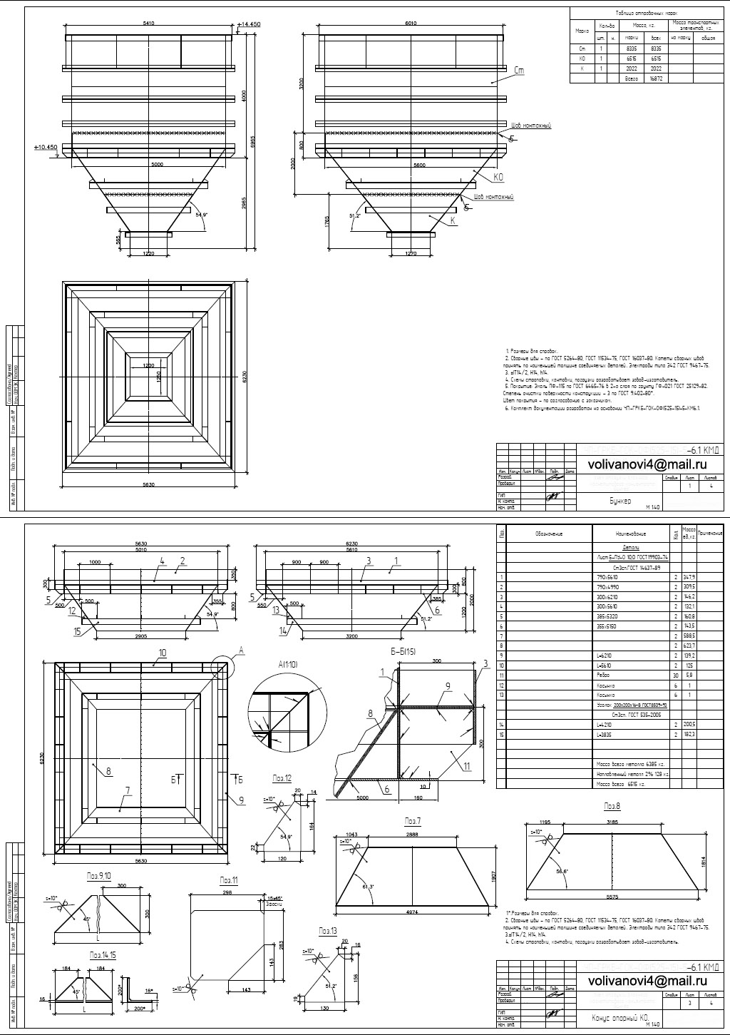
Зумпф, емкомть, бункер, комплект. КД, КМД, чертежи, рабочая, документация, volivanovi4@mail.ru

Презентация проекта

pic3060400.jpg

Оценили проект:

0