Рейтинг: 90
не верифицирован
Всего отзывов: 1 0
  • Работ в портфолио: 35
  • Типовых услуг: 0
  • Работ на продажу: 0
Был на сайте:

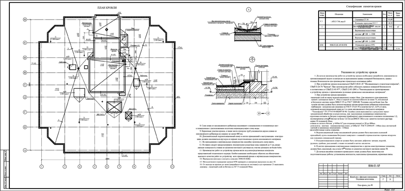
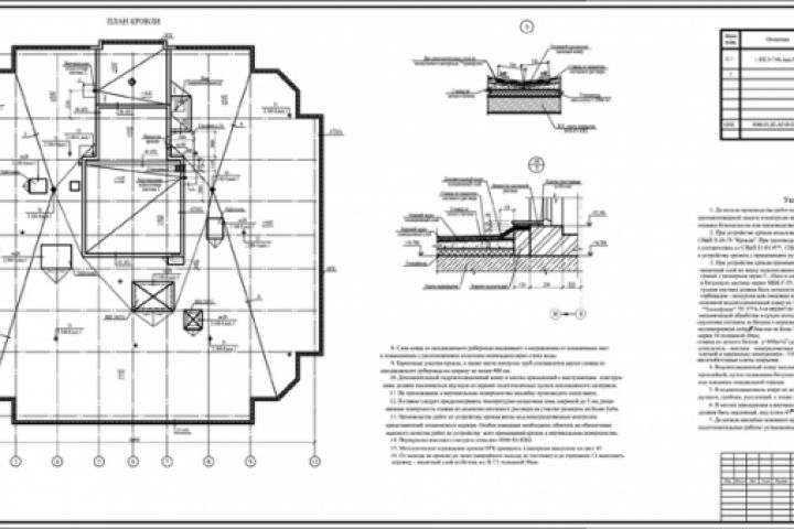
План кровли многоэтажного жилого дома (стадия РП)

Используемые навыки:

Описание

План кровли многоэтажного жилого дома (стадия РП)

Презентация проекта

pic4204859.jpg

Оценили проект:

0