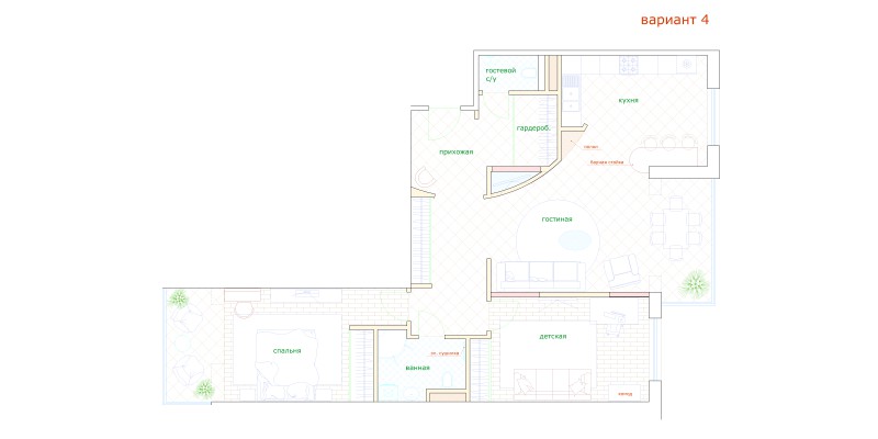
Планировка – Квартиры 104 кв. м. с расстановкой мебели
Для полной функциональности этого сайта необходимо включить JavaScript.
Москва
На сайте с: 24.03.2018
Ксения
sssineglazka
Рейтинг: 59
не верифицирован
Всего отзывов:
0
Работ в портфолио:
9
Типовых услуг:
0
Работ на продажу:
0
Была на сайте:
2021-11-15 в 15:25
inbox
Предложить работу
Добавить в избранное
Добавить рекомендацию
Пожаловаться
Инженерия
13
0
Планировка – Квартиры 104 кв. м. с расстановкой мебели
Используемые навыки:
Чертежи/Схемы
Описание
Решение
Результат
Соавторы
Презентация проекта
Примеры реализации
Описание
Презентация проекта
Оценили проект:
0
×
Оценили проект
×
Авторизация
Для того чтобы оценивать проекты, вам нужно войти на сайт
Другие проекты
Все проекты
Интерьер – Гардероб
Проект – Дом
Планировка – Квартиры 46 кв. м. с расстановкой мебели
FREELANCE.RU
Toggle navigation
Нанять фрилансера
Заказчику
Найти по специализации
Найти по услугам
Провести конкурс
Разместить задание
Виртуальный HR
Другое
Найти работу
Фрилансеру
Найти задание
Присоединиться к команде
Участвовать в конкурсе
Другое
Возможности
Для заказчика
Для фрилансера
Вход
Разместить задание
▲