Ванная комната.Чертеж
Для полной функциональности этого сайта необходимо включить JavaScript.
На сайте с: 29.08.2020
Диана Кузина
bakamobaka
Рейтинг: 68
не верифицирован
Всего отзывов:
0
Работ в портфолио:
18
Типовых услуг:
0
Работ на продажу:
0
Была на сайте:
2021-11-16 в 00:09
inbox
Предложить работу
Добавить в избранное
Добавить рекомендацию
Пожаловаться
Дизайн пространства
153
0
Ванная комната.Чертеж
Используемые навыки:
Архитектурное проектирование
Описание
Решение
Результат
Соавторы
Презентация проекта
Примеры реализации
Описание
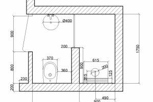
Ванная комната с размерами. Автокад.
Презентация проекта
Оценили проект:
0
×
Оценили проект
×
Авторизация
Для того чтобы оценивать проекты, вам нужно войти на сайт
Другие проекты
Все проекты
Ванная комната.Чертеж
скетчи
скетчи
FREELANCE.RU
Toggle navigation
Нанять фрилансера
Заказчику
Найти по специализации
Найти по услугам
Провести конкурс
Разместить задание
Другое
Найти работу
Фрилансеру
Найти задание
Присоединиться к команде
Участвовать в конкурсе
Другое
Возможности
Для заказчика
Для фрилансера
Вход
Разместить задание
▲