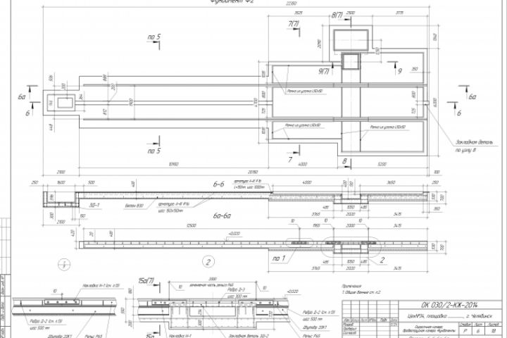
Фундамент под оборудование
Для полной функциональности этого сайта необходимо включить JavaScript.
На сайте с: 06.04.2021
Арина Пуртова
arinafirst
Рейтинг: 42
не верифицирован
Всего отзывов:
0
Работ в портфолио:
2
Типовых услуг:
0
Работ на продажу:
0
Был на сайте:
2021-11-29 в 12:48
inbox
Предложить работу
Добавить в избранное
Добавить рекомендацию
Пожаловаться
Инженерия
8
0
Фундамент под оборудование
Используемые навыки:
Строительные конструкции
Описание
Решение
Результат
Соавторы
Презентация проекта
Примеры реализации
Описание
Фундамент под оборудование
Презентация проекта
Оценили проект:
0
×
Оценили проект
×
Авторизация
Для того чтобы оценивать проекты, вам нужно войти на сайт
Другие проекты
Все проекты
Пример КМД
FREELANCE.RU
Toggle navigation
Нанять фрилансера
Заказчику
Найти по специализации
Найти по услугам
Провести конкурс
Разместить задание
Другое
Найти работу
Фрилансеру
Найти задание
Присоединиться к команде
Участвовать в конкурсе
Другое
Возможности
Для заказчика
Для фрилансера
Вход
Разместить задание
▲